Back to Oak Porches
Oak Porches - WS01247
This is a building we have previously constructed which you may want to use as a starting point for your design. All our buildings are designed and manufactured to your individual specifications.
Details
A simple green oak framed porch.
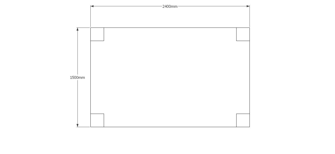
Dimensions
| G/F Area (sq m) | 3.6 |
| Total Area (sq m) | 3.6 |
| Length (m) | 2.4 |
| Depth (m) | 1.5 |
| Ridge Height (m) | 3.4 |
| Roof Pitch (deg) | 37 |
| Number of Bays | 1 |
| Location | Hampshire |




