Back to Four Bays and Upwards
Four Bays and Upwards - WS01244
This is a building we have previously constructed which you may want to use as a starting point for your design. All our buildings are designed and manufactured to your individual specifications.
Details
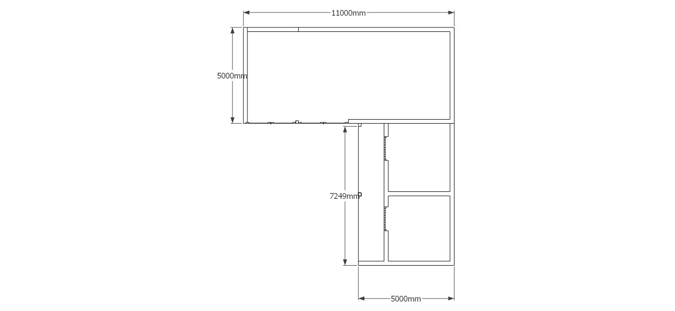
An L shaped oak framed building, with two bay garage and storage area. Attached is two bays for stables.
Dimensions
| G/F Area (sq m) | 91.2 |
| Total Area (sq m) | 91.2 |
| Length (m) | 11 |
| Depth (m) | 12.2 |
| Ridge Height (m) | 4.4 |
| Roof Pitch (deg) | 37 |
| Number of Bays | 6 |
| Location | Devon |




