Back to Three Bay Oak Garages with Upper Floors
Three Bay Oak Garages with Upper Floors - WS01241
This is a building we have previously constructed which you may want to use as a starting point for your design. All our buildings are designed and manufactured to your individual specifications.
Details
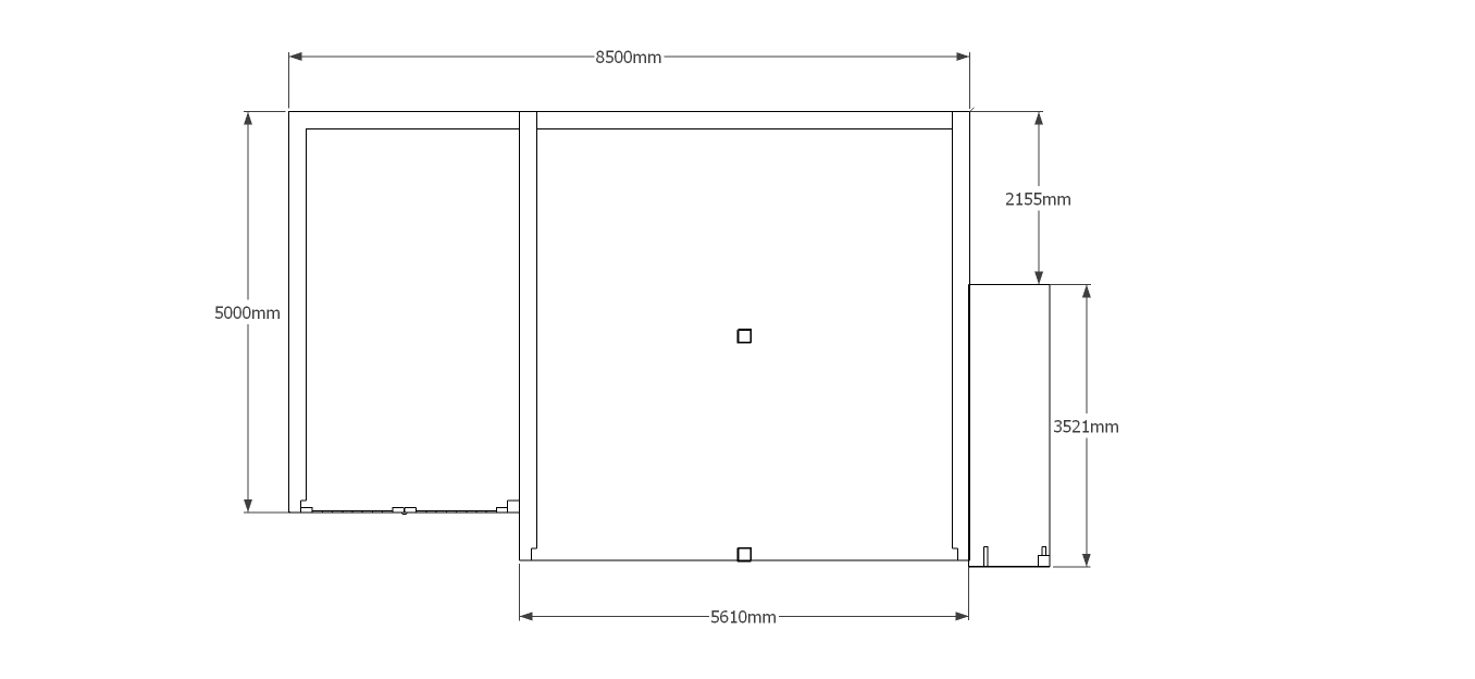
An oak framed garage. Bottom floor has two open parking bays and one smaller enclosed one which could be used for a car or storage which has a set of barn doors. An external staircase leads to the upstairs which has two dormer windows.
Dimensions
| G/F Area (sq m) | 46.29 |
| F/F Area (sq m) | 21.09 |
| Total Area (sq m) | 67.38 |
| Length (m) | 8.5 |
| Depth (m) | 5.676 |
| Ridge Height (m) | 5.4 |
| Roof Pitch (deg) | 45 |
| Number of Bays | 3 |
| Location | Jersey |




