Back to Two Bay Oak Garages
Two Bay Oak Garages - WS01237
This is a building we have previously constructed which you may want to use as a starting point for your design. All our buildings are designed and manufactured to your individual specifications.
Details
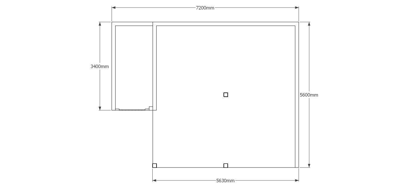
An oak framed garage with two open bays and a small storage space connected next to it.
Dimensions
| G/F Area (sq m) | 36.9 |
| Total Area (sq m) | 36.9 |
| Length (m) | 7.2 |
| Depth (m) | 5.6 |
| Ridge Height (m) | 4.8 |
| Roof Pitch (deg) | 40 |
| Number of Bays | 2 |
| Location | Kent |




