Back to Four Bays And Upwards with Upper Floors
Four Bays And Upwards with Upper Floors - WS01228
This is a building we have previously constructed which you may want to use as a starting point for your design. All our buildings are designed and manufactured to your individual specifications.
Details
An oak framed garage / barn. Three open bays and a studio next door and also upper floor with plenty of space. Roof lighting is used to create natural light in top floor.
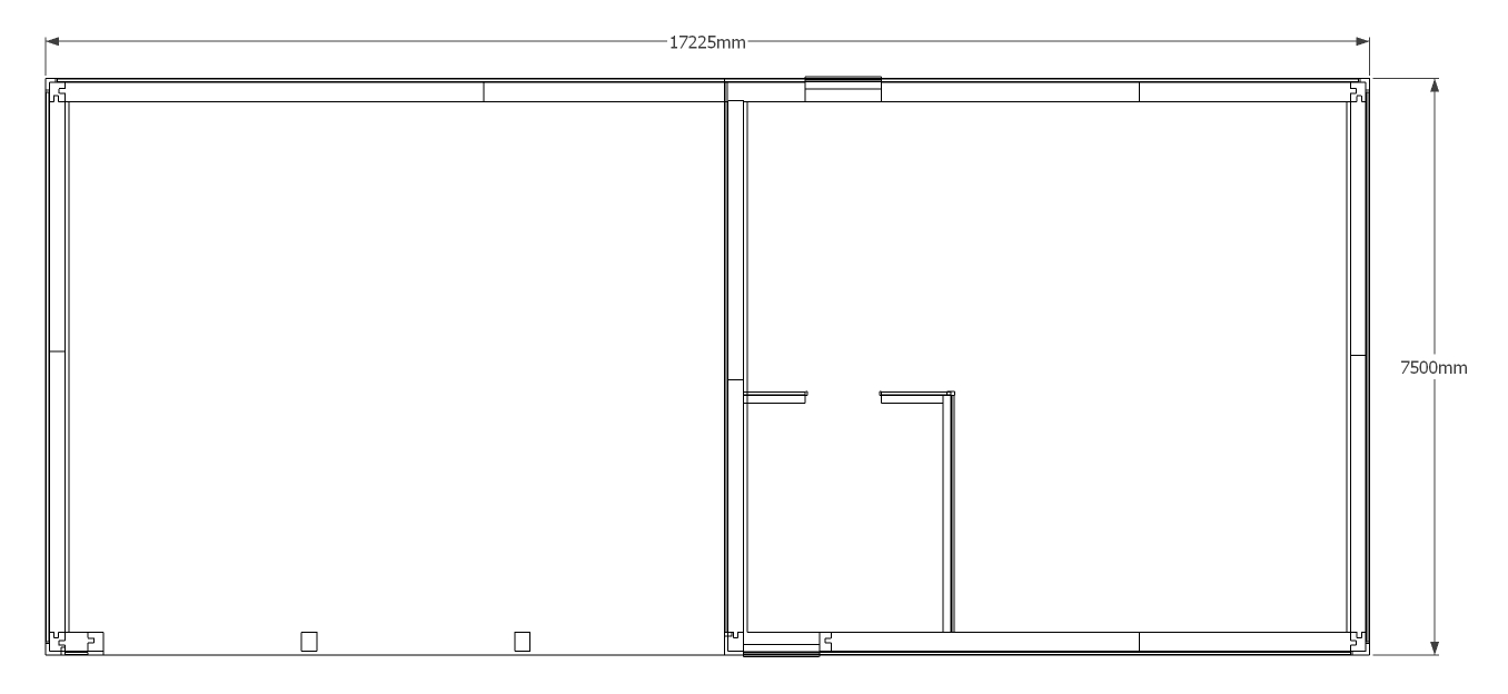
Dimensions
| G/F Area (sq m) | 129.2 |
| F/F Area (sq m) | 129.2 |
| Total Area (sq m) | 258.4 |
| Length (m) | 17.2 |
| Depth (m) | 7.5 |
| Ridge Height (m) | 6.7 |
| Roof Pitch (deg) | 46 |
| Number of Bays | 12 |
| Location | Hampshire |




