Back to Oak Framed Extensions
Oak Framed Extensions - WS01205
Also in: Oak lean to
This is a building we have previously constructed which you may want to use as a starting point for your design. All our buildings are designed and manufactured to your individual specifications.
Details
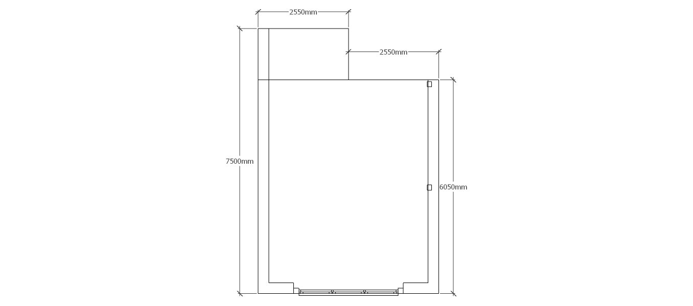
An oak framed and brick extention with one end having full height glazing. One side has running windows and roof light is available to take advantage of natural light.
Dimensions
| G/F Area (sq m) | 34.6 |
| Total Area (sq m) | 34.6 |
| Length (m) | 5.1 |
| Depth (m) | 7.5 |
| Ridge Height (m) | 5.1 |
| Roof Pitch (deg) | 45 |
| Number of Bays | 3 |
| Location | Oxfordshire |




