Back to Garden Rooms and Orangeries
Garden Rooms and Orangeries - WS01204
Also in: Oak Framed Extensions
Also in: Oak lean to
Also in: Oak Porches
This is a building we have previously constructed which you may want to use as a starting point for your design. All our buildings are designed and manufactured to your individual specifications.
Details
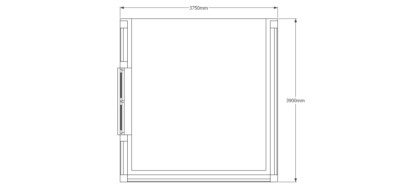
An oak framed porch extension with brick support, with glazing on all sides of the building and full height glazing doors.
Dimensions
| G/F Area (sq m) | 14.6 |
| Total Area (sq m) | 14.6 |
| Length (m) | 3.75 |
| Depth (m) | 3.9 |
| Ridge Height (m) | 4 |
| Roof Pitch (deg) | 42 |
| Number of Bays | 1 |
| Location | Essex |



