Back to Four Bays and Upwards
Four Bays and Upwards - WS01203
This is a building we have previously constructed which you may want to use as a starting point for your design. All our buildings are designed and manufactured to your individual specifications.
Details
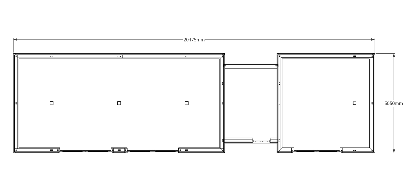
An oak framed barn with two main sections. First area has two large barn doors and connects to the other by a link building with a door, the other section having another set of barn doors. Whole of building has roof lighting to create natural lighting.
Dimensions
| G/F Area (sq m) | 112.6 |
| Total Area (sq m) | 112.6 |
| Length (m) | 20.5 |
| Depth (m) | 5.7 |
| Ridge Height (m) | 4.9 |
| Roof Pitch (deg) | 40 |
| Number of Bays | 6 |
| Location | Essex |




