Back to Oak Framed Houses
Oak Framed Houses - WS01187
This is a building we have previously constructed which you may want to use as a starting point for your design. All our buildings are designed and manufactured to your individual specifications.
Details
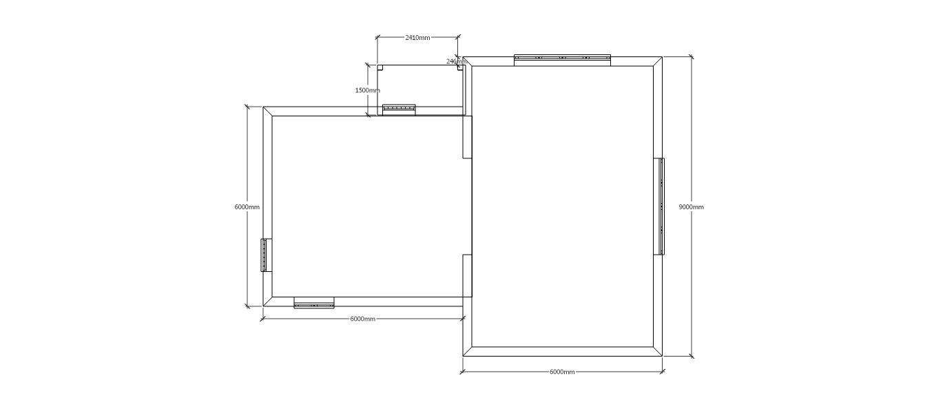
An oak framed house in a T shape. Both buildings have doors and plenty of single windows, with the upstairs having roof lighting and windows in dormers to produce maximum light. Bottom floor also contains full height glazing on some parts of the building.
Dimensions
| G/F Area (sq m) | 93.6 |
| F/F Area (sq m) | 93.6 |
| Total Area (sq m) | 187.2 |
| Length (m) | 12 |
| Depth (m) | 9 |
| Ridge Height (m) | 6.4 |
| Roof Pitch (deg) | 50 |
| Number of Bays | 4 |
| Location | Bedfordshire |




