Back to Home Leisure Buildings
Home Leisure Buildings - WS01185
This is a building we have previously constructed which you may want to use as a starting point for your design. All our buildings are designed and manufactured to your individual specifications.
Details
An oak framed pool enclosure with full height glazing to the front of building and a midstrey above with extra glazing to allow maximum sunlight. Main building has single windows as well whilst the studio/changing room conected to the building has roof lights.
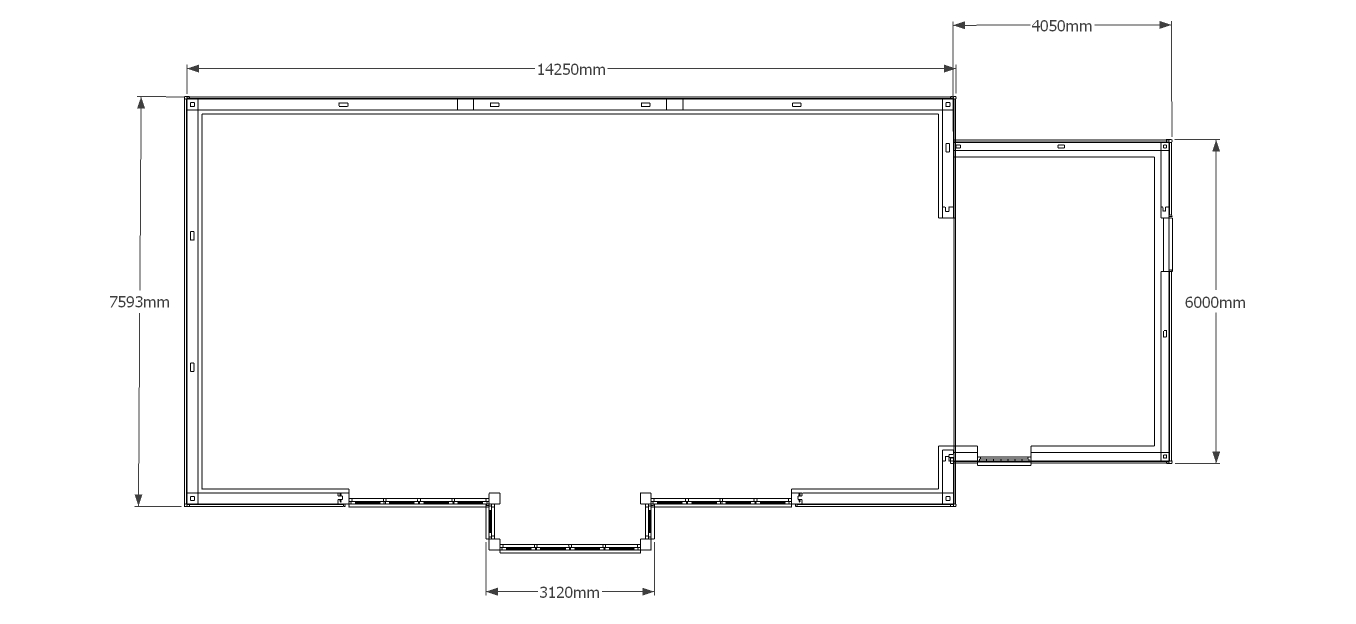
Dimensions
| G/F Area (sq m) | 132.65 |
| Total Area (sq m) | 132.65 |
| Length (m) | 18.2 |
| Depth (m) | 7.5 |
| Ridge Height (m) | 5.6 |
| Roof Pitch (deg) | 40 |
| Number of Bays | 7 |
| Location | Kent |




