Back to Oak Barns
Oak Barns - WS01163
Also in: Oak Framed Complexes
Also in: Stables and Barns
This is a building we have previously constructed which you may want to use as a starting point for your design. All our buildings are designed and manufactured to your individual specifications.
Details
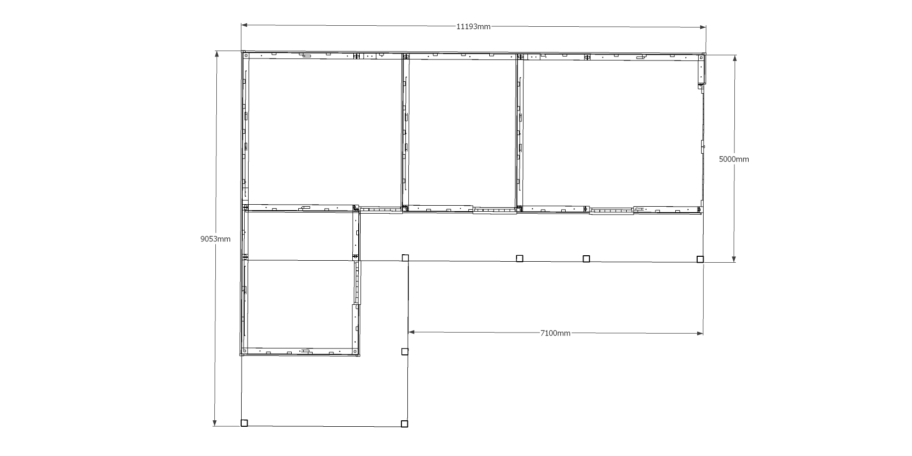
An oak frame equestrian/stable building, with hay store and shelterd roof area.
Dimensions
| G/F Area (sq m) | 71.5 |
| Total Area (sq m) | 71.5 |
| Length (m) | 11.1 |
| Depth (m) | 9 |
| Ridge Height (m) | 4.7 |
| Roof Pitch (deg) | 40 |
| Number of Bays | 4 |
| Location | Belgium |




