Back to Oak Framed Complexes
Oak Framed Complexes - WS01159
This is a building we have previously constructed which you may want to use as a starting point for your design. All our buildings are designed and manufactured to your individual specifications.
Details
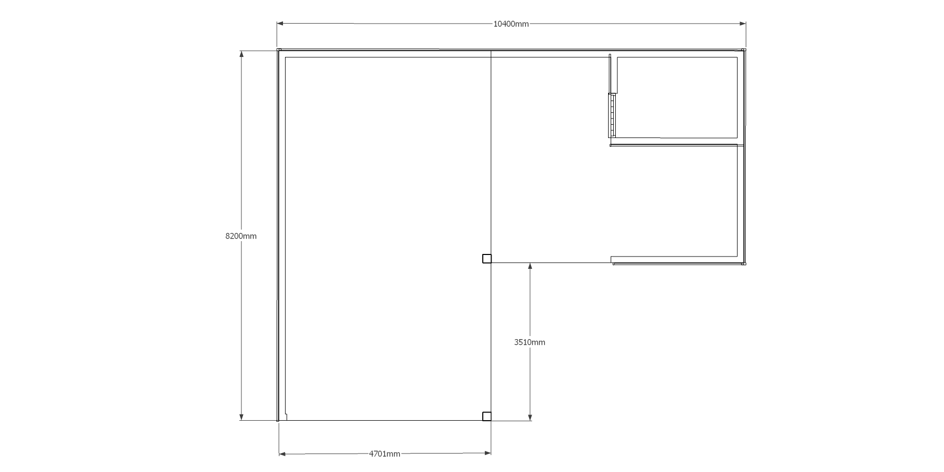
An L shaped oak framed garage. One end has a bay for parking whilst the other has a studio or storage space connected.
Dimensions
| G/F Area (sq m) | 64.86 |
| Total Area (sq m) | 64.86 |
| Length (m) | 10.3 |
| Depth (m) | 8.2 |
| Ridge Height (m) | 4.4 |
| Roof Pitch (deg) | 40 |
| Number of Bays | 2 |
| Location | Belgium |




