Back to Commercial Buildings
Commercial Buildings - WS01154
This is a building we have previously constructed which you may want to use as a starting point for your design. All our buildings are designed and manufactured to your individual specifications.
Details
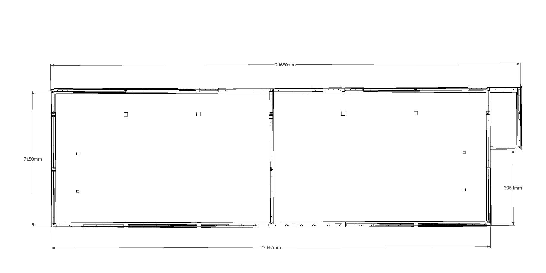
An oak framed pavillion with full height glazing down one side and alternating doors and single windows on the other side. There is also a small storage area at one end.
Dimensions
| G/F Area (sq m) | 170.72 |
| Total Area (sq m) | 170.72 |
| Length (m) | 24.6 |
| Depth (m) | 7.2 |
| Ridge Height (m) | 6.5 |
| Roof Pitch (deg) | 50 |
| Number of Bays | 6 |
| Location | Hampshire |




