Back to Oak Framed Car Ports
Oak Framed Car Ports - WS01153
Also in: Two Bay Oak Garages
This is a building we have previously constructed which you may want to use as a starting point for your design. All our buildings are designed and manufactured to your individual specifications.
Details
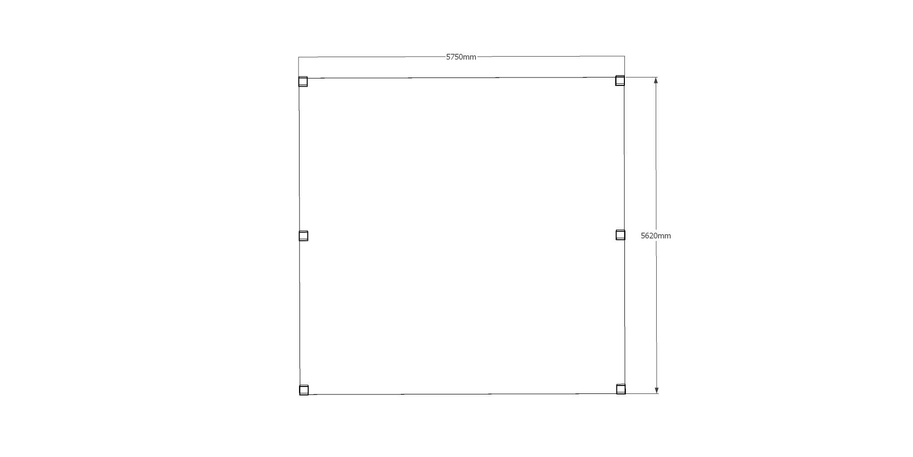
A simple oak framed two bay car port, open all sides.
Dimensions
| G/F Area (sq m) | 32.2 |
| Total Area (sq m) | 32.2 |
| Length (m) | 5.62 |
| Depth (m) | 5.73 |
| Ridge Height (m) | 4.8 |
| Roof Pitch (deg) | 40 |
| Number of Bays | 2 |
| Location | Cheshire |




