Back to Four Bays And Upwards with Upper Floors
Four Bays And Upwards with Upper Floors - WS01143
This is a building we have previously constructed which you may want to use as a starting point for your design. All our buildings are designed and manufactured to your individual specifications.
Details
An oak framed garage with 4 parking bays, two of which are open and two enclosed by barn doors. The roof has a dormer for detail and there is 4 rooflights at the rear of the building to bring in more natural light.
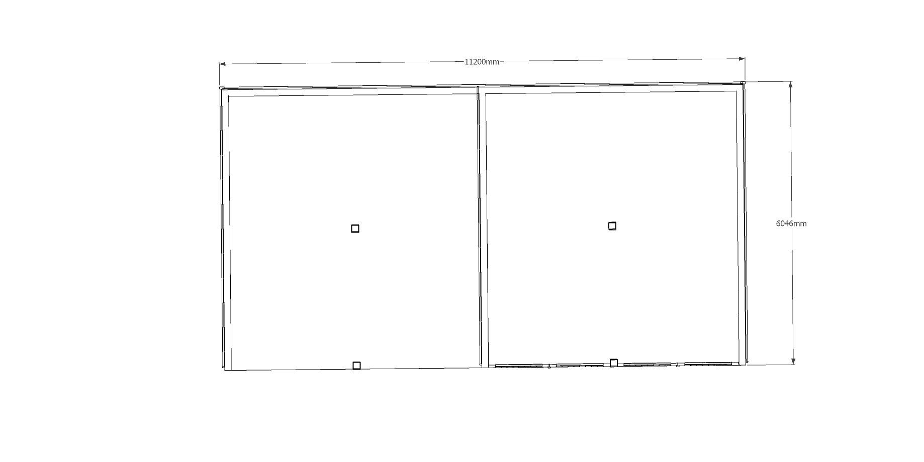
Dimensions
| G/F Area (sq m) | 66.6 |
| F/F Area (sq m) | 44.4 |
| Total Area (sq m) | 111 |
| Length (m) | 11.1 |
| Depth (m) | 6 |
| Ridge Height (m) | 5.4 |
| Roof Pitch (deg) | 45 |
| Number of Bays | 4 |
| Location | Cornwall |




