Back to Two Bay Oak Garages with Upper Floors
Two Bay Oak Garages with Upper Floors - WS01139
This is a building we have previously constructed which you may want to use as a starting point for your design. All our buildings are designed and manufactured to your individual specifications.
Details
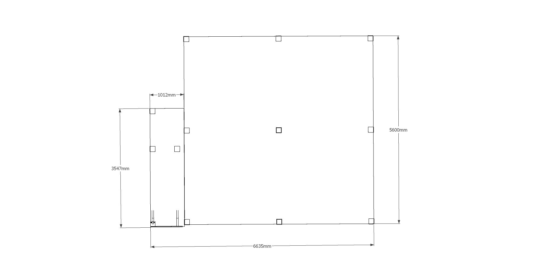
A 2 bay oak framed garage with an upper floor, The front of the building is left open while on the left side is a staircase allow access to the first floor. There is a solid single door in the left gable end and aon the right hand side there is a 3 light window.
Dimensions
| G/F Area (sq m) | 37.16 |
| Total Area (sq m) | 37.16 |
| Length (m) | 6.635 |
| Depth (m) | 5.6 |
| Ridge Height (m) | 5.25 |
| Roof Pitch (deg) | 45 |
| Number of Bays | 2 |
| Location | Hampshire |




