Back to Oak Framed Houses
Oak Framed Houses - WS01136
This is a building we have previously constructed which you may want to use as a starting point for your design. All our buildings are designed and manufactured to your individual specifications.
Details
A large oak framed house extension with sling braces and a top floor. There’s single windows as well as some full height glazing on the top floor to allow as much natural light into the house. A small porch is attachted to the front door and a chimney to create a nice family home.
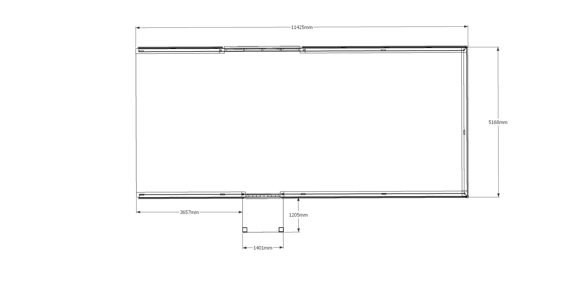
Dimensions
| G/F Area (sq m) | 59.46 |
| F/F Area (sq m) | 35.23 |
| Total Area (sq m) | 94.69 |
| Length (m) | 11.275 |
| Depth (m) | 6.325 |
| Ridge Height (m) | 5.9 |
| Roof Pitch (deg) | 45 |
| Number of Bays | 4 |
| Location | Wiltshire |
| Ridge Height (m) | Sling Brace |




