Back to Something Different
Something Different - WS01127
This is a building we have previously constructed which you may want to use as a starting point for your design. All our buildings are designed and manufactured to your individual specifications.
Details
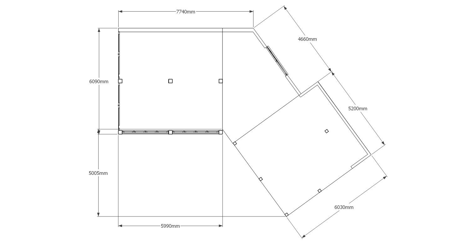
An oak framed building in a dog-leg shape with one section open with 2 bays for parking whilst the other end enclosed with two large doors, full height glazing along one side and an upper floor area accessed via an internal staircase.
Dimensions
| G/F Area (sq m) | 90 |
| F/F Area (sq m) | 30 |
| Total Area (sq m) | 120 |
| Length (m) | 10.82 |
| Depth (m) | 14.51 |
| Ridge Height (m) | 4.5 |
| Roof Pitch (deg) | 40 |
| Number of Bays | 4 |
| Location | Belgium |




