Back to Three Bay Oak Garages with Upper Floors
Three Bay Oak Garages with Upper Floors - WS01119
This is a building we have previously constructed which you may want to use as a starting point for your design. All our buildings are designed and manufactured to your individual specifications.
Details
A sling brace design garage with 3 secure garage bays on the lower floor and a spacious living / leisure space on the upper floor. The upper floor is accessed via an external staircase and has plenty of natural light from the fully glazed double access doors, 3 roof lights and a small glazed gable section.
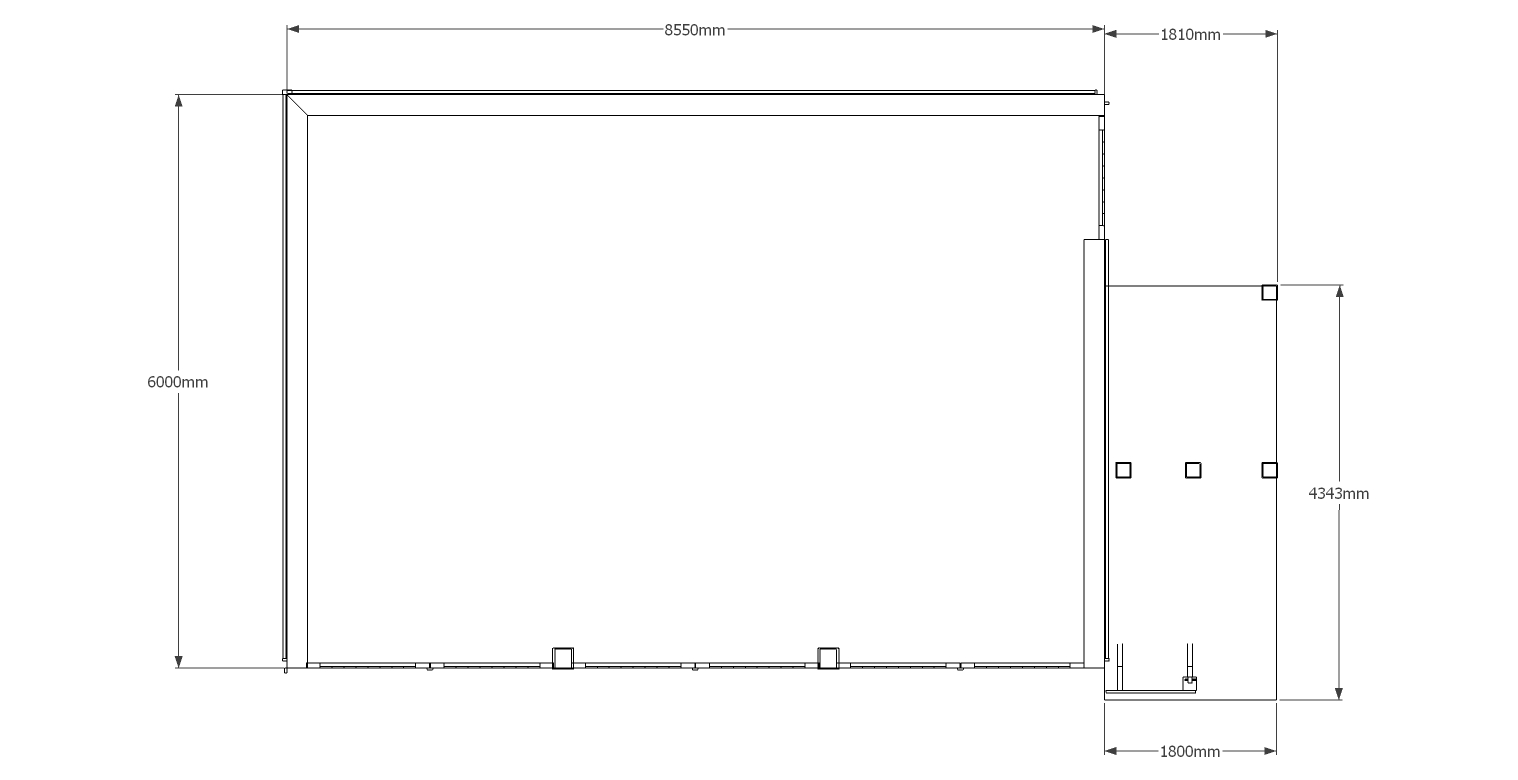
Dimensions
| G/F Area (sq m) | 59.1 |
| F/F Area (sq m) | 34.2 |
| Total Area (sq m) | 93.3 |
| Length (m) | 10.35 |
| Depth (m) | 6.333 |
| Ridge Height (m) | 6.5 |
| Roof Pitch (deg) | 45 |
| Number of Bays | 3 |
| Location | Hampshire |
| Ridge Height (m) | Sling Brace |




