Back to Three Bay Oak Garages with Upper Floors
Three Bay Oak Garages with Upper Floors - WS01117
This is a building we have previously constructed which you may want to use as a starting point for your design. All our buildings are designed and manufactured to your individual specifications.
Details
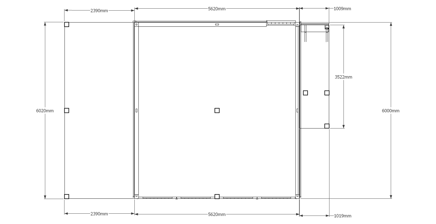
A 3 bay garage with one open carport bay and 2 bays secured by garage doors. The upper floor is accessed via an external staircase and has 2 dormer windows.
Dimensions
| G/F Area (sq m) | 51.56 |
| F/F Area (sq m) | 32 |
| Total Area (sq m) | 83.56 |
| Length (m) | 9.01 |
| Depth (m) | 6 |
| Ridge Height (m) | 5.6 |
| Roof Pitch (deg) | 45 |
| Number of Bays | 3 |
| Location | Worcestershire |



