Back to Garden Rooms and Orangeries
Garden Rooms and Orangeries - WS01093
Also in: Home Leisure Buildings
This is a building we have previously constructed which you may want to use as a starting point for your design. All our buildings are designed and manufactured to your individual specifications.
Details
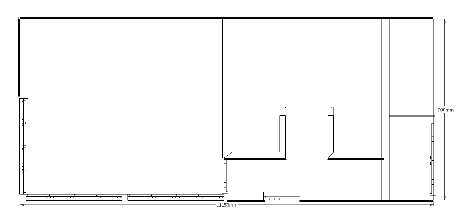
This oak framed home leisure building has two bays with full length opening garden room windows to the front and left side, and two enclosed bays to function as a store or workshop. The store is accessed via a single door to the front of the building and has a two pane window to the front, as well as an enclosed logstore to the right side.
Dimensions
| G/F Area (sq m) | 54.39 |
| Total Area (sq m) | 54.39 |
| Length (m) | 11.1 |
| Depth (m) | 4.9 |
| Ridge Height (m) | 4.4 |
| Roof Pitch (deg) | 40 |
| Number of Bays | 4 |
| Location | Belgium |



