Back to Two Bay Oak Garages
Two Bay Oak Garages - WS01070
This is a building we have previously constructed which you may want to use as a starting point for your design. All our buildings are designed and manufactured to your individual specifications.
Details
This oak framed garage has two enclosed bays accessed via standard garage doors to the front. It also has an open store to the the right.
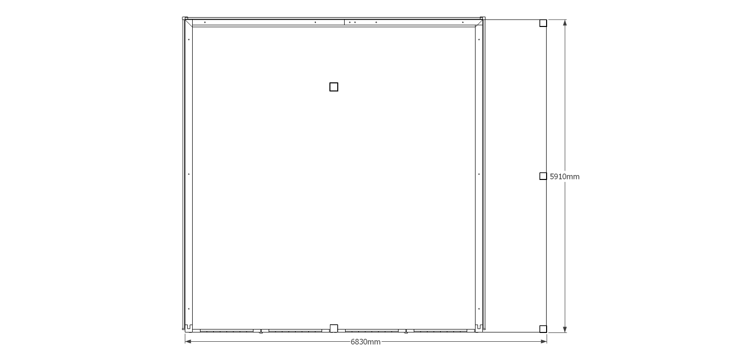
Dimensions
| G/F Area (sq m) | 40.24 |
| Total Area (sq m) | 40.24 |
| Length (m) | 6.82 |
| Depth (m) | 5.9 |
| Ridge Height (m) | 3.7 |
| Roof Pitch (deg) | 30 |
| Number of Bays | 2 |
| Location | Kent |



