Back to Two Bay Oak Garages with Upper Floors
Two Bay Oak Garages with Upper Floors - WS01050
This is a building we have previously constructed which you may want to use as a starting point for your design. All our buildings are designed and manufactured to your individual specifications.
Details
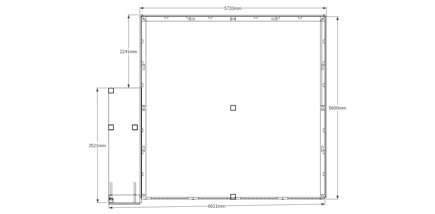
This two storey oak framed garage is formed of two enclosed bays, each accessed by a set of garage doors. The first floor is reached by an external oak staircase and a single door. There are trimmings for two rooflights.
Dimensions
| G/F Area (sq m) | 35.03 |
| F/F Area (sq m) | 20.23 |
| Total Area (sq m) | 55.26 |
| Length (m) | 6.63 |
| Depth (m) | 5.6 |
| Ridge Height (m) | 5.3 |
| Roof Pitch (deg) | 45 |
| Number of Bays | 2 |
| Location | Suffolk |
| Ridge Height (m) | Two Storey |



