Back to Garden Rooms and Orangeries
Garden Rooms and Orangeries - WS01037
Also in: Oak Framed Extensions
Also in: Oak lean to
This is a building we have previously constructed which you may want to use as a starting point for your design. All our buildings are designed and manufactured to your individual specifications.
Details
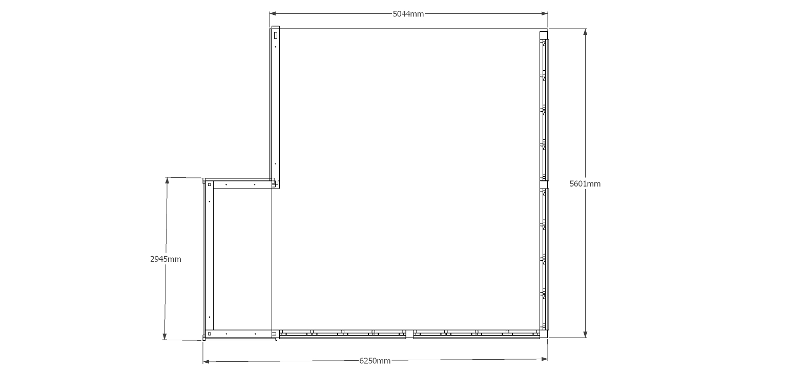
This oak framed garden room is designed to be attached on the left hand side to an existing building. It has full length opening garden room windows to the front of the building as well as the right side, and an enclosed store to the rear with a single pane window.
Dimensions
| G/F Area (sq m) | 31.41 |
| Total Area (sq m) | 31.41 |
| Length (m) | 6.2 |
| Depth (m) | 5.6 |
| Ridge Height (m) | 5.2 |
| Roof Pitch (deg) | 45 |
| Number of Bays | 2 |
| Location | Belgium |




