Back to Four Bays and Upwards
Four Bays and Upwards - WS00988
This is a building we have previously constructed which you may want to use as a starting point for your design. All our buildings are designed and manufactured to your individual specifications.
Details
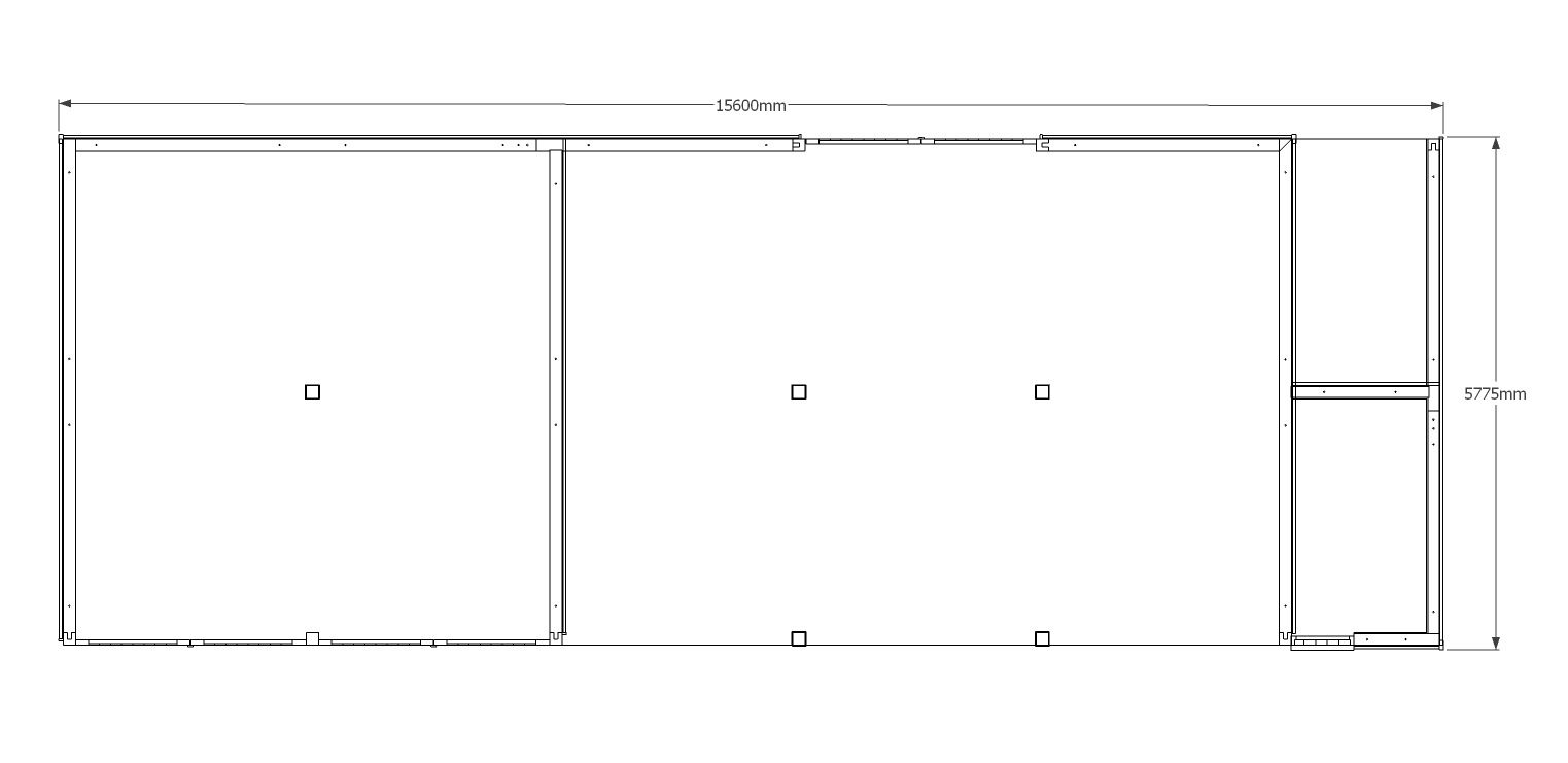
This is an oak framed building with three open garage bays and two enclosed bays.The enclosed bays are accessed by garage doors to the front. There is also a store to the right hand side accessed by a single door.
Dimensions
| G/F Area (sq m) | 90.09 |
| Total Area (sq m) | 90.09 |
| Length (m) | 15.6 |
| Depth (m) | 5.775 |
| Ridge Height (m) | 4.45 |
| Roof Pitch (deg) | 35 |
| Number of Bays | 5 |
| Location | Surrey |




