Back to Two Bay Oak Garages with Upper Floors
Two Bay Oak Garages with Upper Floors - WS00973
This is a building we have previously constructed which you may want to use as a starting point for your design. All our buildings are designed and manufactured to your individual specifications.
Details
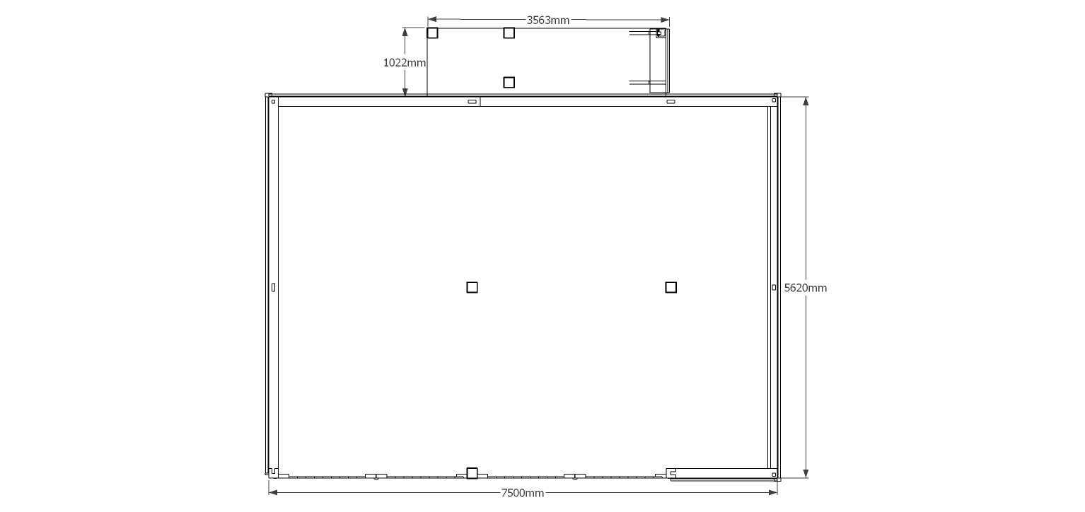
This oak framed two storey garage is formed of two enclosed bays, accessed via two sets of garage doors to the left side. There is an enclosed logstore to the front and an external oak staircase to the right side. To the first floor there is access by a single solid door and trimmings for two rooflights. To the left side of the building there is a three pane window.
Dimensions
| G/F Area (sq m) | 45.71 |
| F/F Area (sq m) | 26.7 |
| Total Area (sq m) | 72.41 |
| Length (m) | 7.5 |
| Depth (m) | 6.63 |
| Ridge Height (m) | 5.4 |
| Roof Pitch (deg) | 45 |
| Number of Bays | 2 |
| Location | Kent |
| Ridge Height (m) | Two Storey |



