Back to Two Bay Oak Garages
Two Bay Oak Garages - WS00953
This is a building we have previously constructed which you may want to use as a starting point for your design. All our buildings are designed and manufactured to your individual specifications.
Details
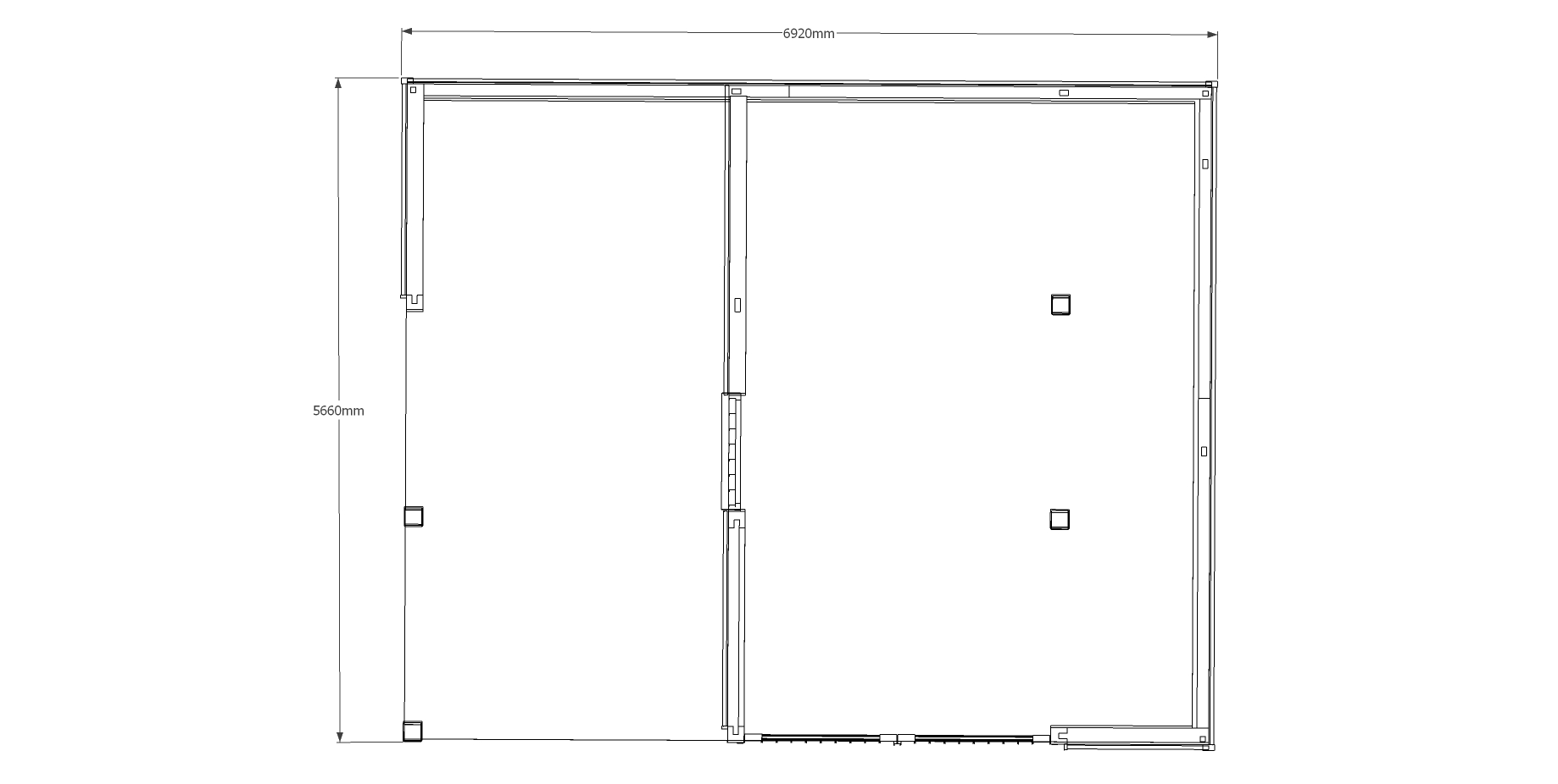
This is a two bay oak framed building with one enclosed garage bay and one open bay. There is an enclosed logstore on the right side and trimming for one rooflight.
Dimensions
| G/F Area (sq m) | 38.19 |
| Total Area (sq m) | 38.19 |
| Length (m) | 6.82 |
| Depth (m) | 5.6 |
| Ridge Height (m) | 4.02 |
| Roof Pitch (deg) | 40 |
| Number of Bays | 2 |
| Location | West Sussex |




