Back to Two Bay Oak Garages
Two Bay Oak Garages - WS00944
This is a building we have previously constructed which you may want to use as a starting point for your design. All our buildings are designed and manufactured to your individual specifications.
Details
This is an oak framed building with two open bays.
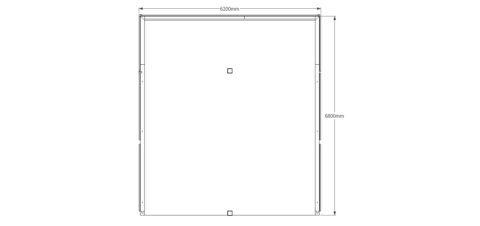
Dimensions
| G/F Area (sq m) | 42.16 |
| Total Area (sq m) | 42.16 |
| Length (m) | 6.2 |
| Depth (m) | 6.8 |
| Ridge Height (m) | 4.523 |
| Roof Pitch (deg) | 40 |
| Number of Bays | 2 |
| Location | Avon |




