Back to Home Leisure Buildings
Home Leisure Buildings - WS00940
This is a building we have previously constructed which you may want to use as a starting point for your design. All our buildings are designed and manufactured to your individual specifications.
Details
This is an oak framed building with a upper floor which is accessed via an internal staircase. There is a single door at the front and a three pane window on the left and right hand side, there is also a four pane unit on the right hand side, a rooflight at the front and the rear with a barn hip at each end.
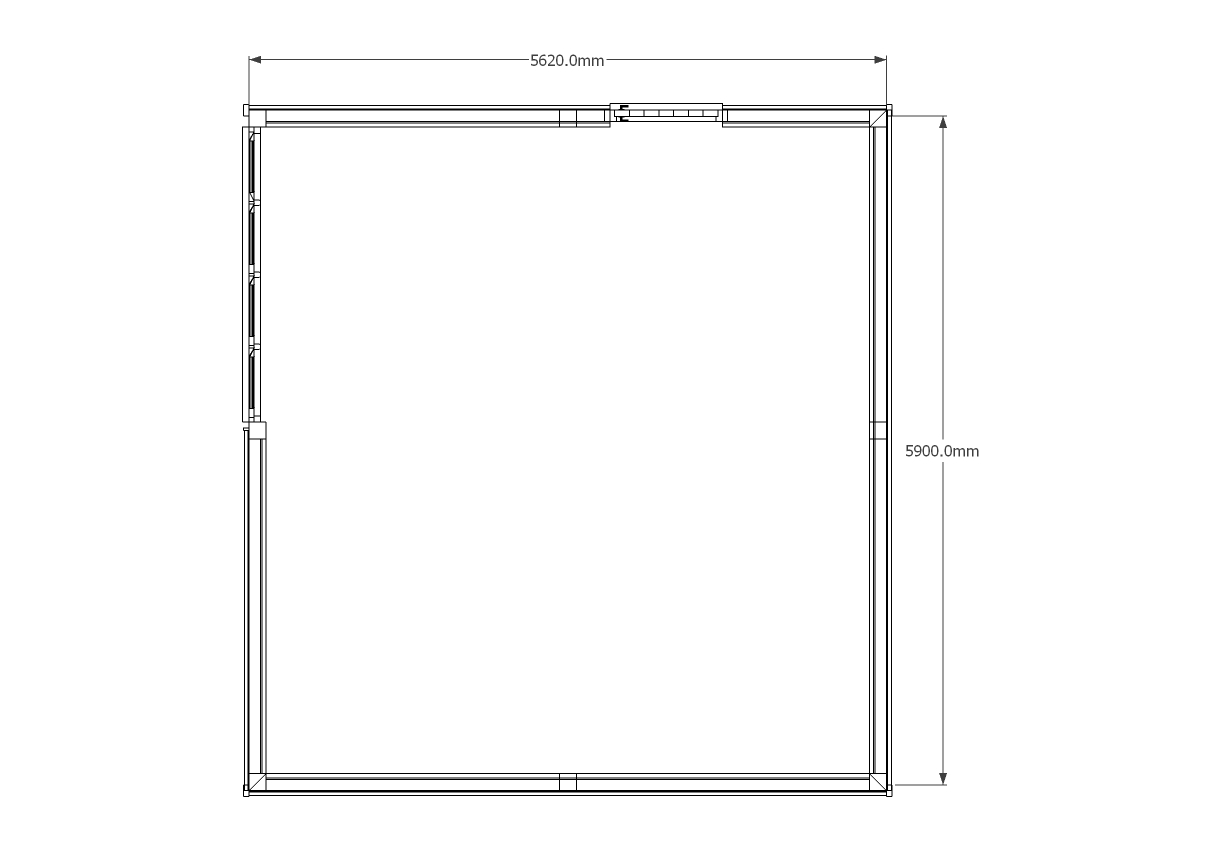
Dimensions
| G/F Area (sq m) | 33.72 |
| Total Area (sq m) | 33.72 |
| Length (m) | 5.62 |
| Depth (m) | 6 |
| Ridge Height (m) | 5.571 |
| Roof Pitch (deg) | 45 |
| Number of Bays | 2 |
| Location | Kent |



