Back to Two Bay Oak Garages with Upper Floors
Two Bay Oak Garages with Upper Floors - WS00937
This is a building we have previously constructed which you may want to use as a starting point for your design. All our buildings are designed and manufactured to your individual specifications.
Details
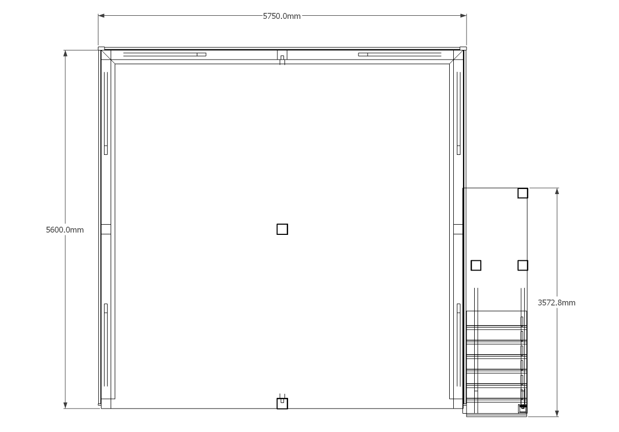
This is a two storey oak framed building with an upper floor which is accessed via the external staircase on the right hand side. On the left hand side there is a two pane window to bring in more natural light to the upper floor. There is also a barn hip at each end.
Dimensions
| G/F Area (sq m) | 32.2 |
| F/F Area (sq m) | 20.7 |
| Total Area (sq m) | 52.9 |
| Length (m) | 5.75 |
| Depth (m) | 5.6 |
| Ridge Height (m) | 5.97 |
| Roof Pitch (deg) | 45 |
| Number of Bays | 2 |
| Location | Kent |
| Ridge Height (m) | Two Storey |




