Back to Home Leisure Buildings
Home Leisure Buildings - WS00919
This is a building we have previously constructed which you may want to use as a starting point for your design. All our buildings are designed and manufactured to your individual specifications.
Details
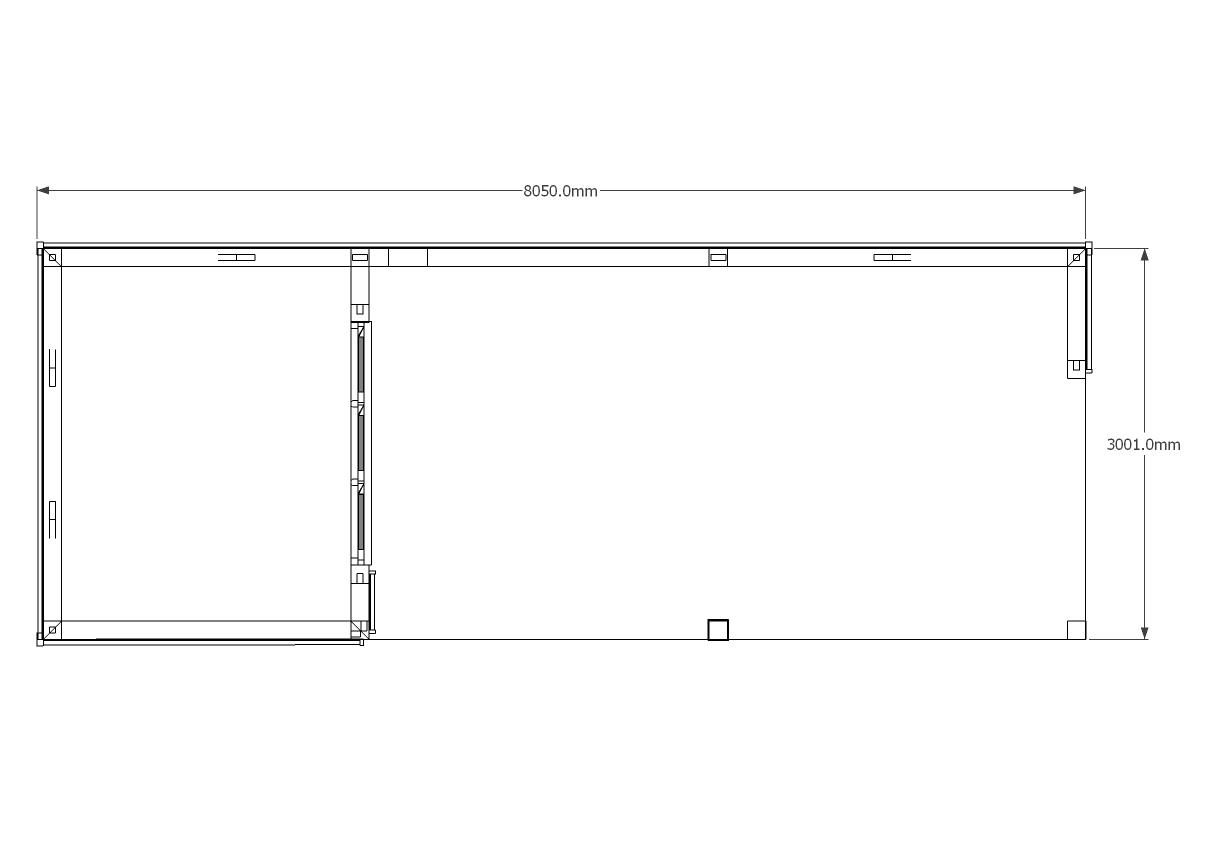
This oak framed building has three bays, one enclosed bay to be used as a store or workshop, and two open bays. The store is accessed via internal doors in the open bays. There are three full length windows on the right hand side.
Dimensions
| G/F Area (sq m) | 24 |
| Total Area (sq m) | 24 |
| Length (m) | 8 |
| Depth (m) | 3 |
| Ridge Height (m) | 3.695 |
| Roof Pitch (deg) | 40 |
| Number of Bays | 3 |
| Location | Belgium |



