Back to Three Bay Oak Garages
Three Bay Oak Garages - WS00909
This is a building we have previously constructed which you may want to use as a starting point for your design. All our buildings are designed and manufactured to your individual specifications.
Details
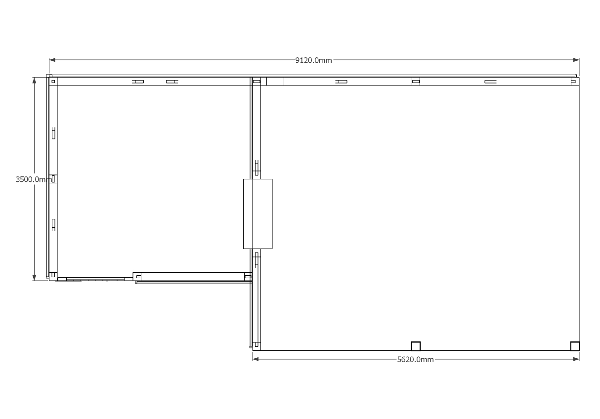
This oak framed building is comprised of two different frames, one is a two bay garage with the front wall left open. The other frame is a single bay store or workshop accessed via a single door to the front and with a mullion window. The store also has a single door on the first floor right hand side and trimming for a chimney.
Dimensions
| G/F Area (sq m) | 38.66 |
| Total Area (sq m) | 38.66 |
| Length (m) | 9.12 |
| Depth (m) | 4.7 |
| Ridge Height (m) | 4.389 |
| Roof Pitch (deg) | 40 |
| Number of Bays | 3 |
| Location | Belgium |



