Back to Three Bay Oak Garages
Three Bay Oak Garages - WS00889
This is a building we have previously constructed which you may want to use as a starting point for your design. All our buildings are designed and manufactured to your individual specifications.
Details
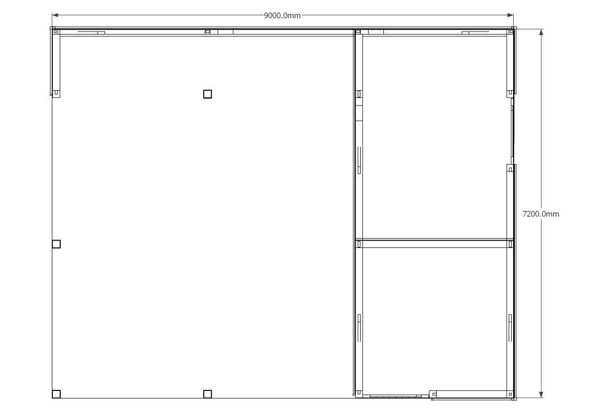
This is a three bay oak framed building, threre are two open bays and one open bay used as a storeage/workshop area which is accessed via the wide door at the front or the wide door on the right hand side. There is also a mullion window at the front and a barn hip at each end.
Dimensions
| G/F Area (sq m) | 64.8 |
| Total Area (sq m) | 64.8 |
| Length (m) | 9 |
| Depth (m) | 7.2 |
| Ridge Height (m) | 4.94 |
| Roof Pitch (deg) | 40 |
| Number of Bays | 3 |
| Location | Belgium |



