Back to Oak Barns

Oak Barns - WS00887

Also in: Oak Framed Complexes
Also in: Stables and Barns

This is a building we have previously constructed which you may want to use as a starting point for your design. All our buildings are designed and manufactured to your individual specifications.

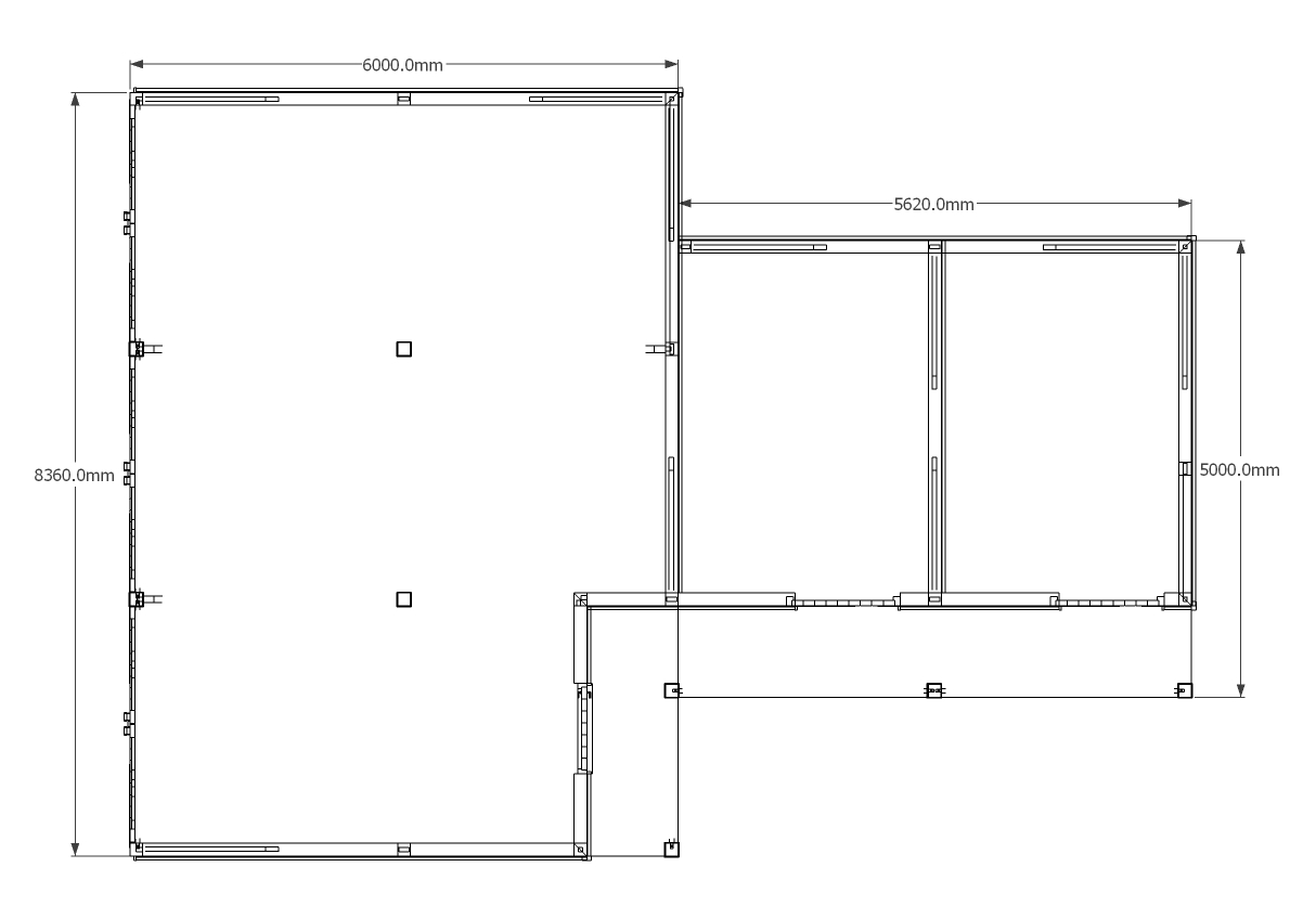
This is an oak framed equestrian building. On the left hand side are three garage bays which a secured with sets of garage doors and one of the bays can also be accessed via the single door at the other end of the bay. There are two other bay which are enclosed and are accessed via the the two equstrian doors at the front of the building.
Special Offer

Details

This is an oak framed equestrian building. On the left hand side are three garage bays which a secured with sets of garage doors and one of the bays can also be accessed via the single door at the other end of the bay. There are two other bay which are enclosed and are accessed via the the two equstrian doors at the front of the building.

Dimensions

G/F Area (sq m) 70.25
Total Area (sq m) 70.25
Length (m) 11.62
Depth (m) 8.36
Ridge Height (m) 4.94
Roof Pitch (deg) 40
Number of Bays 5
Location Belgium