Back to Two Bay Oak Garages with Upper Floors
Two Bay Oak Garages with Upper Floors - WS00864
This is a building we have previously constructed which you may want to use as a starting point for your design. All our buildings are designed and manufactured to your individual specifications.
Details
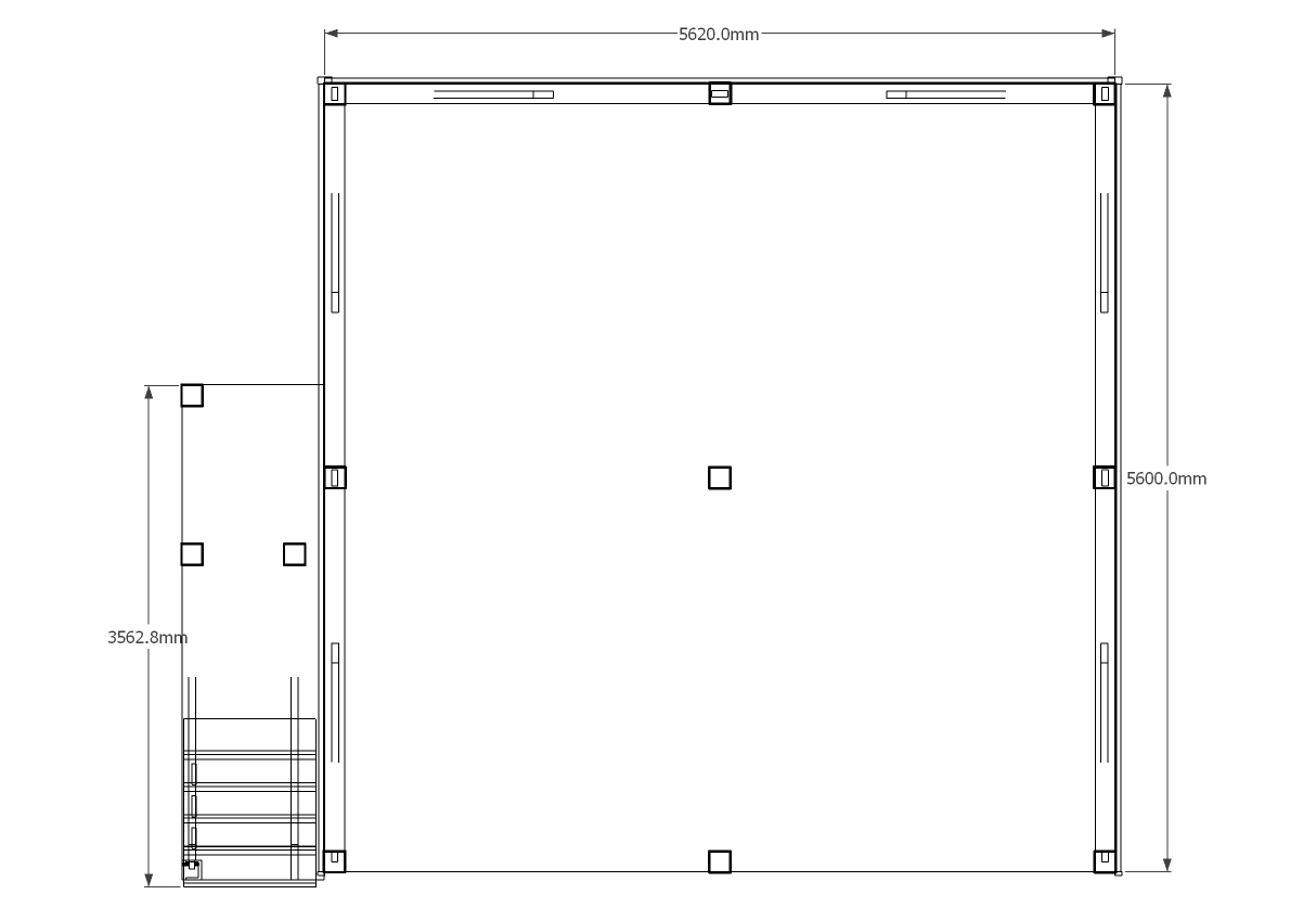
This is an oak framed building with an upper floor which is accessed via the external staircase on the left hand side. The two bays are open and there is a two pane window on the right hand side. There are trimmings for two rooflights on the front of the building to bring in more natural light to the upper floor.
Dimensions
| G/F Area (sq m) | 31.47 |
| F/F Area (sq m) | 20.23 |
| Total Area (sq m) | 51.7 |
| Length (m) | 5.62 |
| Depth (m) | 5.6 |
| Ridge Height (m) | 5.25 |
| Roof Pitch (deg) | 45 |
| Number of Bays | 2 |
| Location | Belgium |



