Back to Four Bays and Upwards
Four Bays and Upwards - WS00857
This is a building we have previously constructed which you may want to use as a starting point for your design. All our buildings are designed and manufactured to your individual specifications.
Details
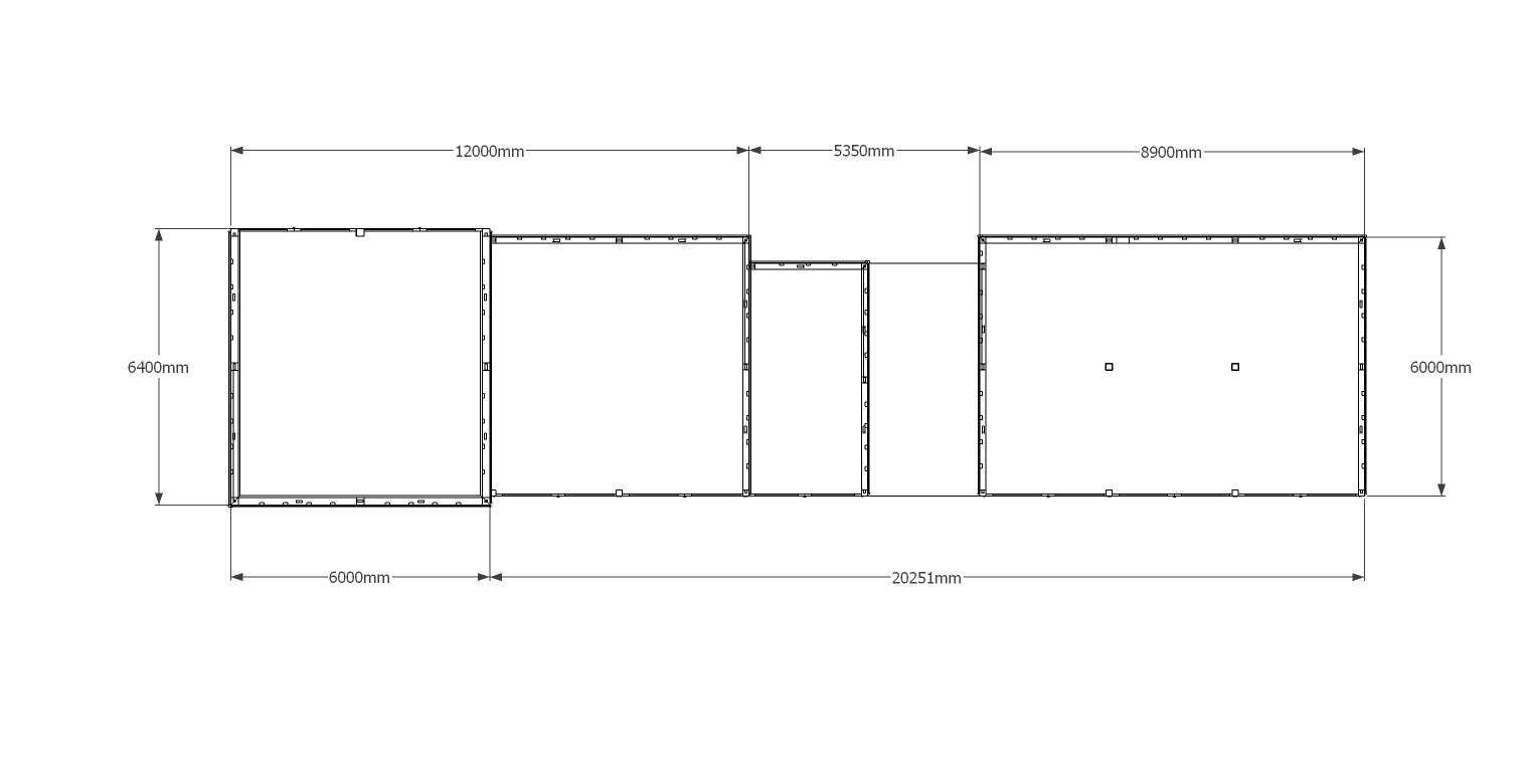
This oak framed building has nine bays. One of the bays is open. There are six sets of garage doors on the front there are two sets of garage doors on the rear of the building.
Dimensions
| G/F Area (sq m) | 157.01 |
| Total Area (sq m) | 157.01 |
| Length (m) | 26.25 |
| Depth (m) | 6.4 |
| Ridge Height (m) | 4.965 |
| Roof Pitch (deg) | 40 |
| Number of Bays | 9 |
| Location | Belgium |





