Back to Three Bay Oak Garages with Upper Floors
Three Bay Oak Garages with Upper Floors - WS00853
This is a building we have previously constructed which you may want to use as a starting point for your design. All our buildings are designed and manufactured to your individual specifications.
Details
This oak framed building has two sets of garage doors at the front of the building. There is a single door for access and a three pane window on the left hand side. At the rear of the building there is a three pane window at the top and there is also a two pane window and a signle pane window. There is also seven rooflights, two at the front, three on the right handside, two at the rear of the building.
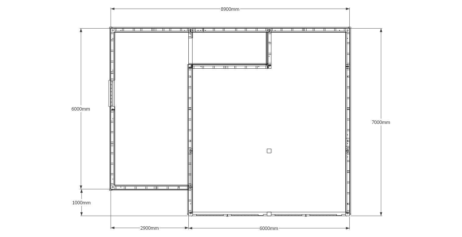
Dimensions
| G/F Area (sq m) | 59.4 |
| F/F Area (sq m) | 46.6 |
| Total Area (sq m) | 106 |
| Length (m) | 8.9 |
| Depth (m) | 7 |
| Ridge Height (m) | 5.43 |
| Roof Pitch (deg) | 45 |
| Number of Bays | 3 |
| Location | Lincolnshire |



