Back to Oak Framed Complexes
Oak Framed Complexes - WS00852
This is a building we have previously constructed which you may want to use as a starting point for your design. All our buildings are designed and manufactured to your individual specifications.
Details
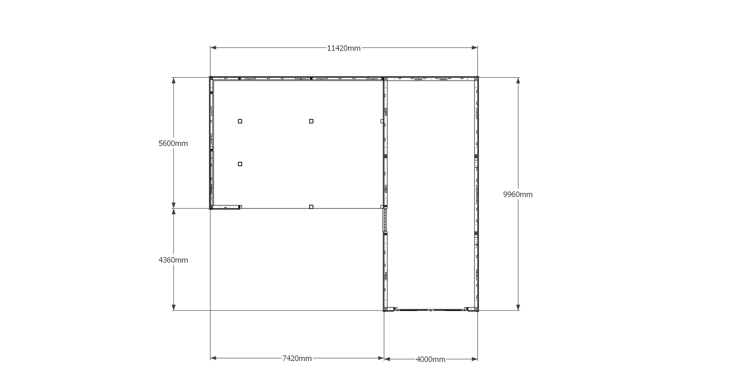
This oak framed complex is designed in an ‘L’ shape. There is a three bay garage with a garage door to the front and a three pane window to each bay and one on the first floor at the front. Attached to this is a two bay open garage with an enclosed catslide to the side.
Dimensions
| G/F Area (sq m) | 81.39 |
| Total Area (sq m) | 81.39 |
| Length (m) | 11.42 |
| Depth (m) | 9.96 |
| Ridge Height (m) | 4.71 |
| Roof Pitch (deg) | 50 |
| Number of Bays | 5 |
| Location | Buckinghamshire |




