Back to Two Bay Oak Garages with Upper Floors
Two Bay Oak Garages with Upper Floors - WS00850
This is a building we have previously constructed which you may want to use as a starting point for your design. All our buildings are designed and manufactured to your individual specifications.
Details
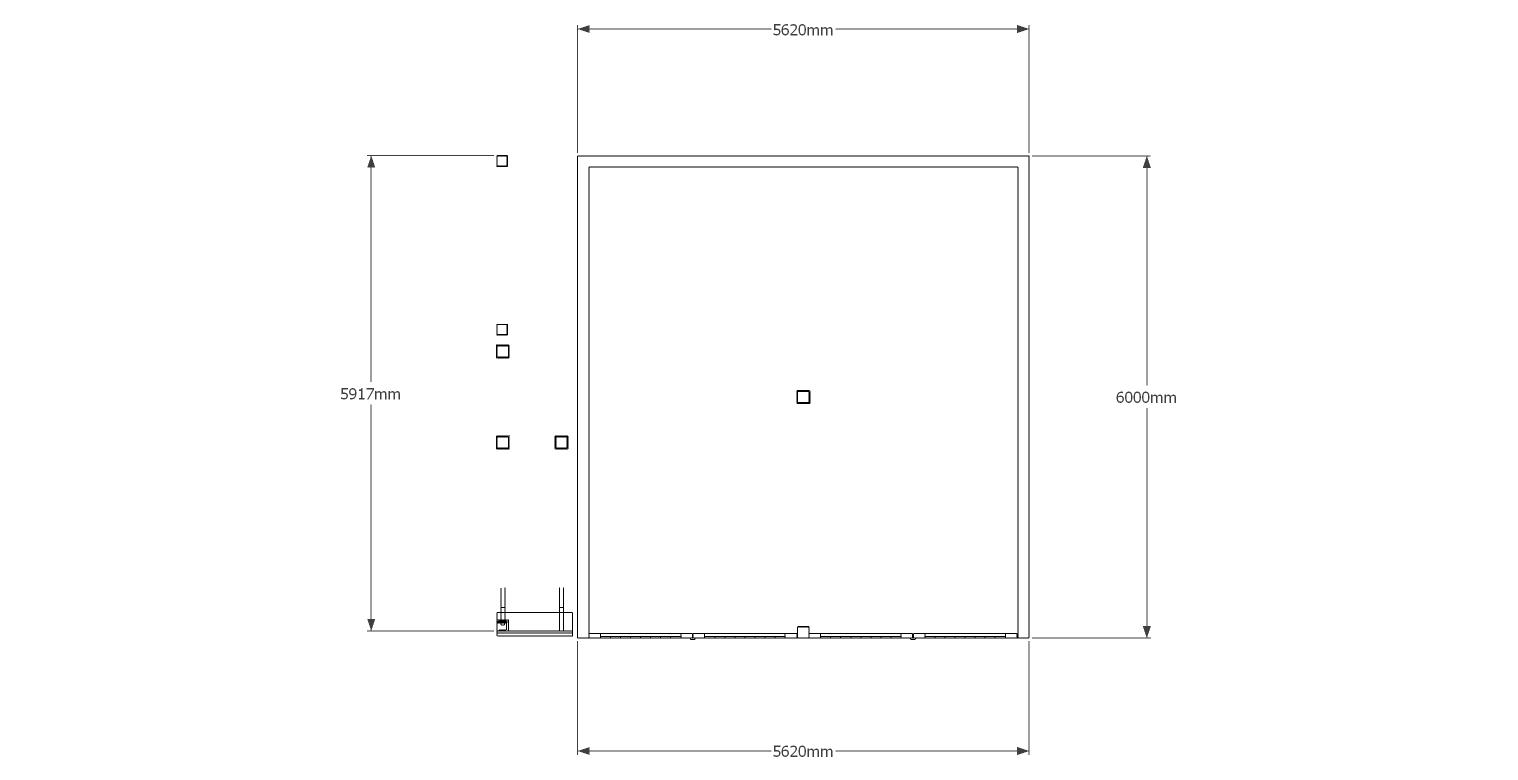
This oak framed two bay enclosed garage has parking for two cars with two sets of garage doors to the front of the building. There is an upstairs accessed by a set of stairs to the left of the building and trimming for two rooflights. There is also a logstore behind the set of stairs.
Dimensions
| G/F Area (sq m) | 33.72 |
| F/F Area (sq m) | 16.86 |
| Total Area (sq m) | 50.58 |
| Length (m) | 6.62 |
| Depth (m) | 6 |
| Ridge Height (m) | 5.4 |
| Roof Pitch (deg) | 45 |
| Number of Bays | 2 |
| Location | Kent |



