Back to Oak Framed Complexes
Oak Framed Complexes - WS00845
This is a building we have previously constructed which you may want to use as a starting point for your design. All our buildings are designed and manufactured to your individual specifications.
Details
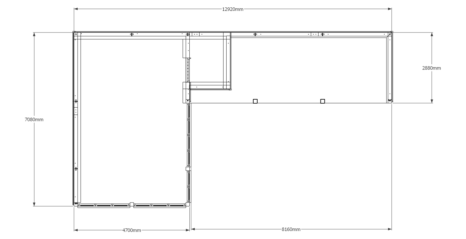
This oak framed complex is formed of two different frames.The first frame is formed of three bays, all enclosed. To the front there are fully glazed units and also to the left side. Attached to this is a three bay garage building, with the first bay enclosed for storage and the other two open to the front.
Dimensions
| G/F Area (sq m) | 55.99 |
| Total Area (sq m) | 55.99 |
| Length (m) | 12.92 |
| Depth (m) | 7.08 |
| Ridge Height (m) | 4.456 |
| Roof Pitch (deg) | 40 |
| Number of Bays | 6 |
| Location | Oxfordshire |



