Back to Three Bay Oak Garages
Three Bay Oak Garages - WS00828
This is a building we have previously constructed which you may want to use as a starting point for your design. All our buildings are designed and manufactured to your individual specifications.
Details
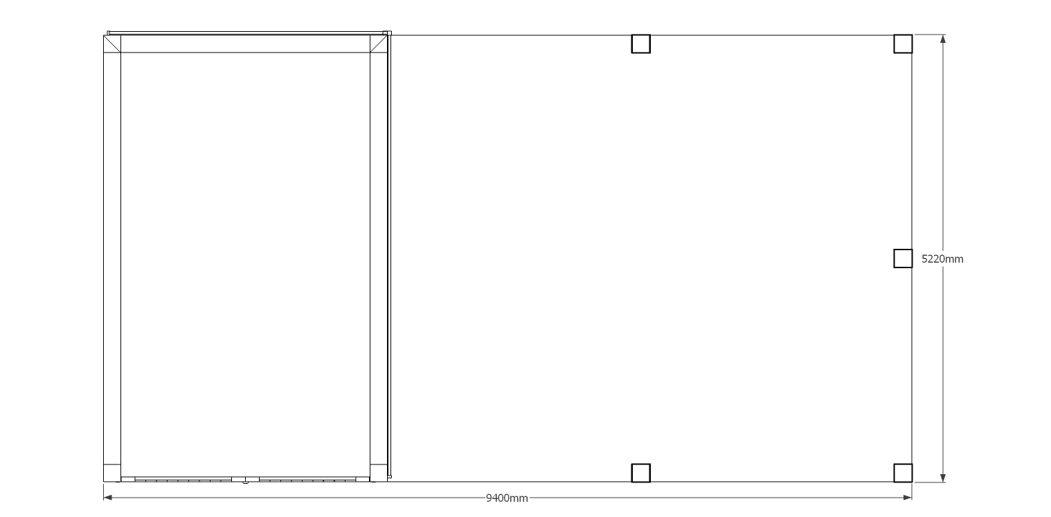
This is a three bay oak framed garage with two open bays and one enclosed bay and is secured with a pair of garage doors.
Dimensions
| G/F Area (sq m) | 48.88 |
| Total Area (sq m) | 48.88 |
| Length (m) | 9.4 |
| Depth (m) | 5.2 |
| Ridge Height (m) | 5.746 |
| Roof Pitch (deg) | 35 |
| Number of Bays | 3 |
| Location | Cambridgeshire |



