Back to Home Leisure Buildings
Home Leisure Buildings - WS00820
This is a building we have previously constructed which you may want to use as a starting point for your design. All our buildings are designed and manufactured to your individual specifications.
Details
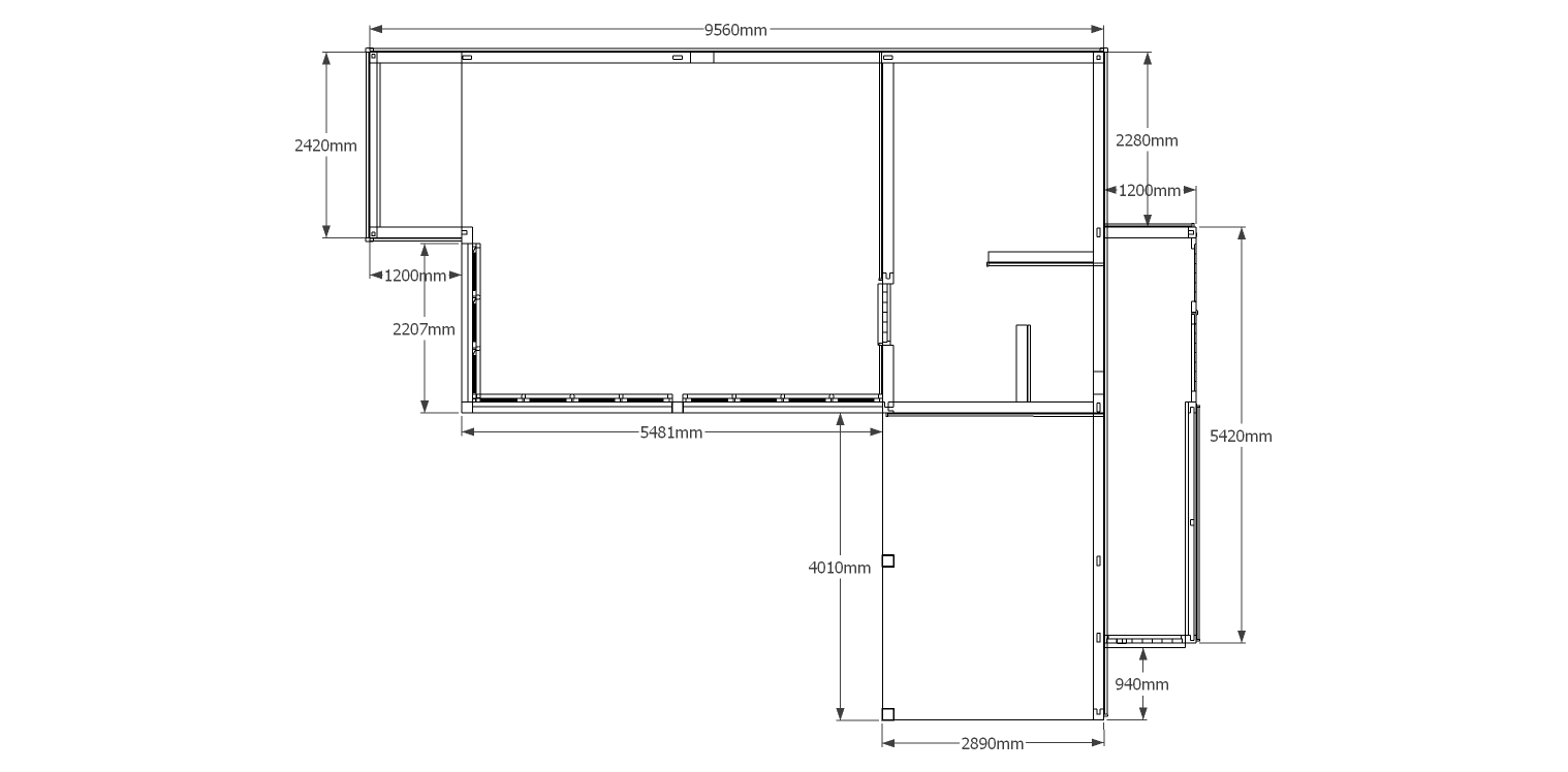
This oak framed home leisure building is formed of a three bay home leisure building, with two bays fully glazed to the front and left side. The third is enclosed and is accessed by a single solid door. The other frame is an open two bay garage with an enclosed store to the rear.
Dimensions
| G/F Area (sq m) | 59.44 |
| Total Area (sq m) | 59.44 |
| Length (m) | 10.76 |
| Depth (m) | 8.64 |
| Ridge Height (m) | 4.393 |
| Roof Pitch (deg) | 40 |
| Number of Bays | 5 |
| Location | Belgium |



