Back to Two Bay Oak Garages
Two Bay Oak Garages - WS00813
This is a building we have previously constructed which you may want to use as a starting point for your design. All our buildings are designed and manufactured to your individual specifications.
Details
This is an oak frame two bay garage secure with garage doors, with an enclosed logstore to the rear. There is a barn hip at each end and on the right hand side there is a mullion window.
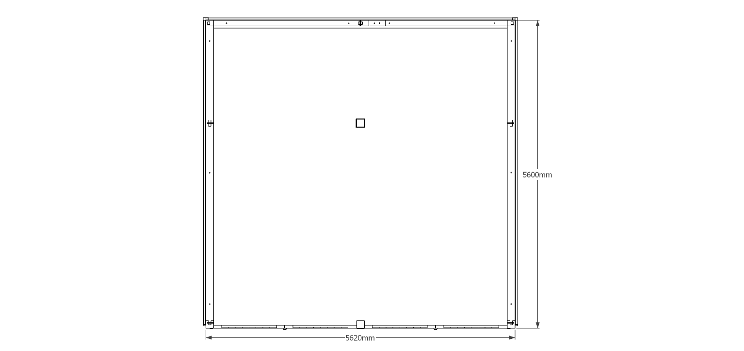
Dimensions
| G/F Area (sq m) | 31.47 |
| Total Area (sq m) | 31.47 |
| Length (m) | 5.62 |
| Depth (m) | 5.6 |
| Ridge Height (m) | 4 |
| Roof Pitch (deg) | 40 |
| Number of Bays | 2 |
| Location | Kent |



