Back to Four Bays and Upwards
Four Bays and Upwards - WS00805
This is a building we have previously constructed which you may want to use as a starting point for your design. All our buildings are designed and manufactured to your individual specifications.
Details
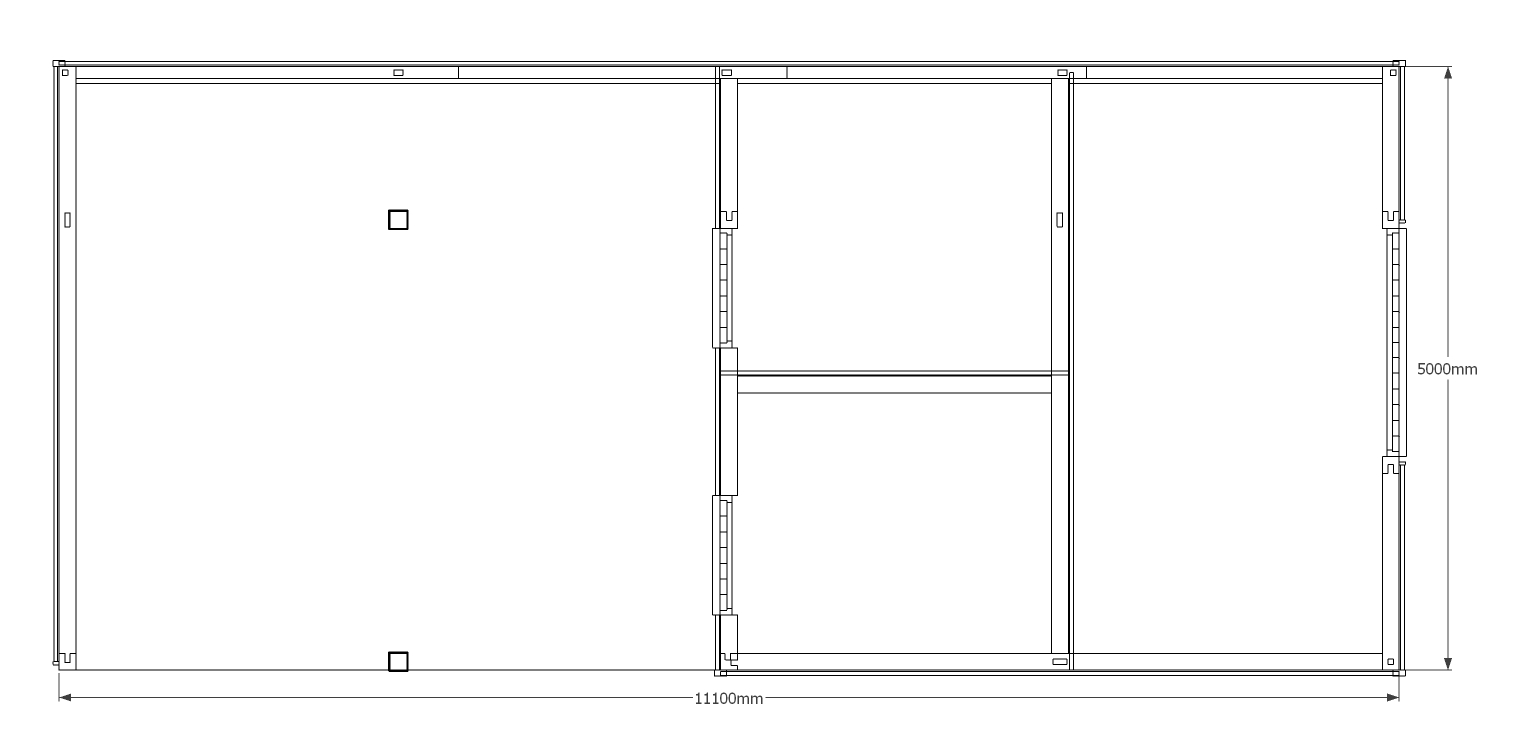
This oak framed garage is formed of four bays; two enclosed and two open. There is an enclosed store to the rear of the building and the enclosed bays are accessed via two solid single doors to the left and a pair of solid doors to the right. To the front there is a mullion window and a single pane window.
Dimensions
| G/F Area (sq m) | 55.5 |
| Total Area (sq m) | 55.5 |
| Length (m) | 11.1 |
| Depth (m) | 5 |
| Ridge Height (m) | 4 |
| Roof Pitch (deg) | 40 |
| Number of Bays | 4 |
| Location | Suffolk |



