Back to Two Bay Oak Garages with Upper Floors
Two Bay Oak Garages with Upper Floors - WS00789
This is a building we have previously constructed which you may want to use as a starting point for your design. All our buildings are designed and manufactured to your individual specifications.
Details
This oak framed two storey garage is formed of two enclosed bays, accessed via a set of garage doors to each. There is an external oak staircase to the left side and a solid single door to access the first floor.
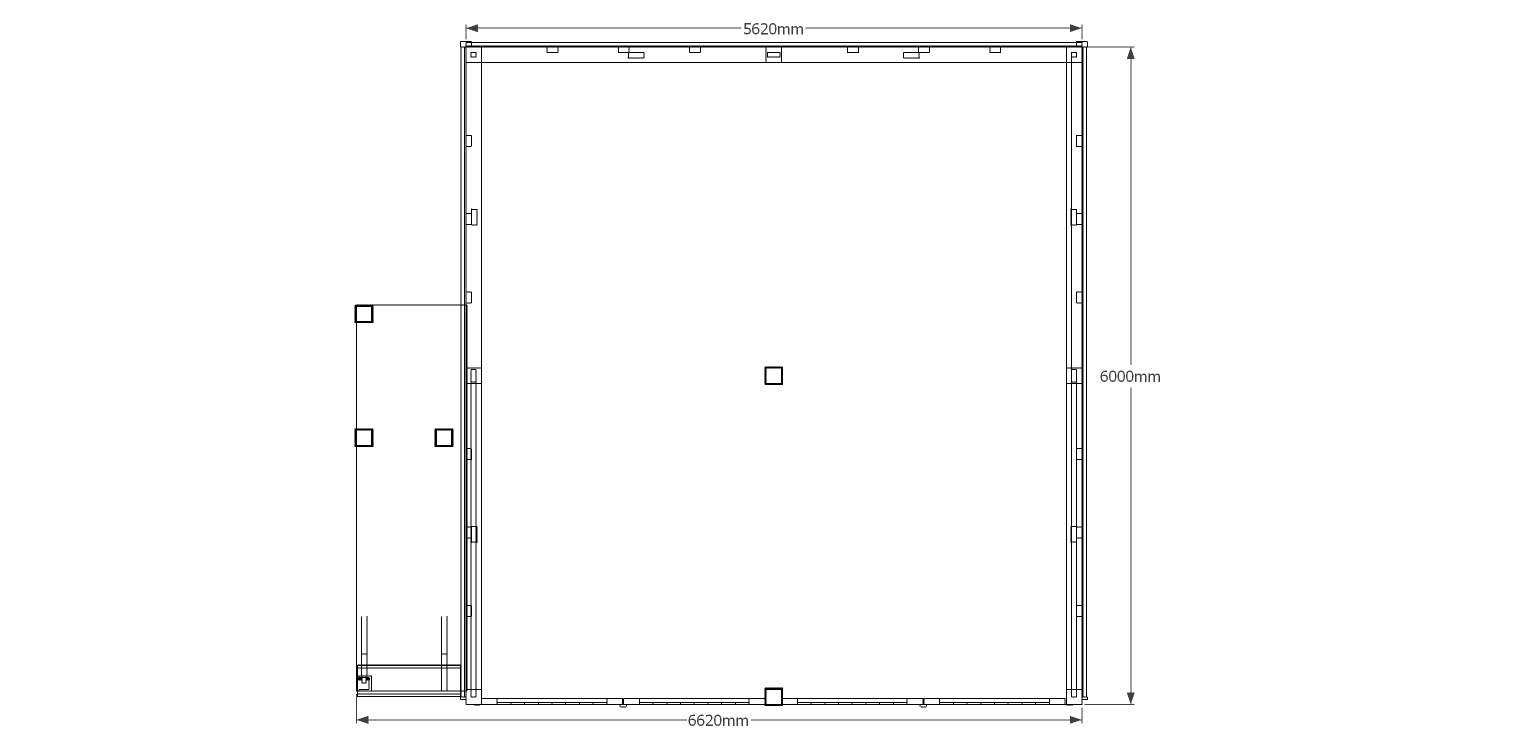
Dimensions
| G/F Area (sq m) | 39.6 |
| F/F Area (sq m) | 22.48 |
| Total Area (sq m) | 62.08 |
| Length (m) | 6.62 |
| Depth (m) | 6 |
| Ridge Height (m) | 5.4 |
| Roof Pitch (deg) | 45 |
| Number of Bays | 2 |
| Location | Avon |
| Ridge Height (m) | Two Storey |



