Back to Three Bay Oak Garages
Three Bay Oak Garages - WS00772
This is a building we have previously constructed which you may want to use as a starting point for your design. All our buildings are designed and manufactured to your individual specifications.
Details
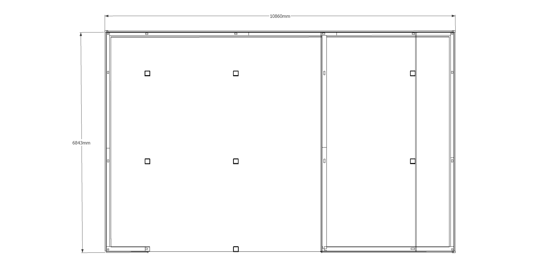
This is an oak framed three bay garage with two open bays and one enclosed bay which is accessed via the single door in the partition. There is also a mullion window at the front of the building, as well as an enclosed logstore to the left, right and rear sides.
Dimensions
| G/F Area (sq m) | 73.17 |
| Total Area (sq m) | 73.17 |
| Length (m) | 10.76 |
| Depth (m) | 6.8 |
| Ridge Height (m) | 5.3 |
| Roof Pitch (deg) | 45 |
| Number of Bays | 3 |
| Location | East Sussex |





