Back to Three Bay Oak Garages
Three Bay Oak Garages - WS00750
This is a building we have previously constructed which you may want to use as a starting point for your design. All our buildings are designed and manufactured to your individual specifications.
Details
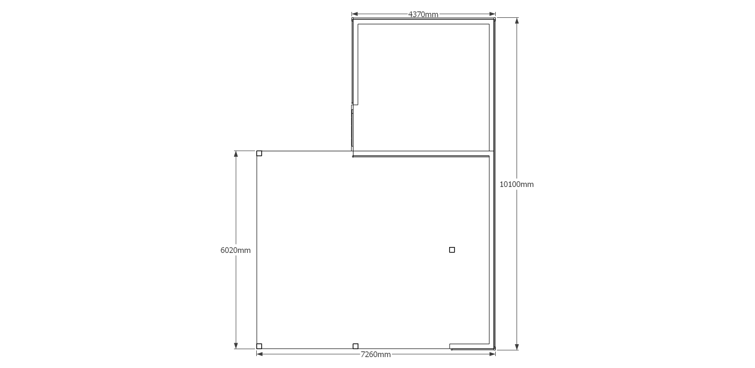
This oak framed garage has an enclosed workshop or store that is accessed by a single door and has a two pane window to the front. Attached to this is a two bay garage with open sides and an upper storey. The first floor is accessed by a hatch and is designed for storage.
Dimensions
| G/F Area (sq m) | 60 |
| Total Area (sq m) | 60 |
| Length (m) | 10 |
| Depth (m) | 7.2 |
| Ridge Height (m) | 4.9 |
| Roof Pitch (deg) | 40 |
| Number of Bays | 3 |
| Location | Belgium |





