Back to Four Bays and Upwards
Four Bays and Upwards - WS00722
This is a building we have previously constructed which you may want to use as a starting point for your design. All our buildings are designed and manufactured to your individual specifications.
Details
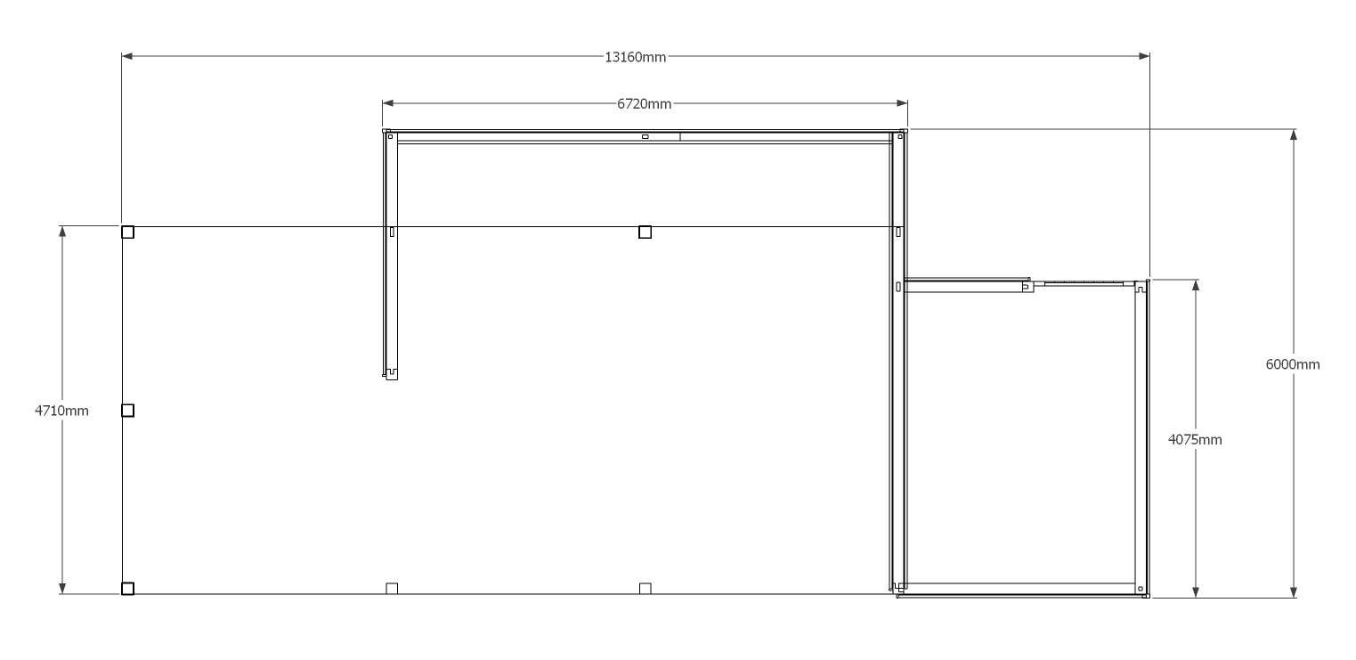
This oak framed garage is formed of two different frames. One is a three bay garage/car port with one bay open to the left side,front and rear. The other bays are open to the front. The other frame is a single enclosed bay, to be used as a store or workshop. Access is via a single solid door to the rear, and there is a mullion window to the front.
Dimensions
| G/F Area (sq m) | 67.08 |
| Total Area (sq m) | 67.08 |
| Length (m) | 13.1 |
| Depth (m) | 5.9 |
| Ridge Height (m) | 4.43 |
| Roof Pitch (deg) | 40 |
| Number of Bays | 4 |
| Location | Belgium |




