Back to Oak Framed Complexes
Oak Framed Complexes - WS00692
This is a building we have previously constructed which you may want to use as a starting point for your design. All our buildings are designed and manufactured to your individual specifications.
Details
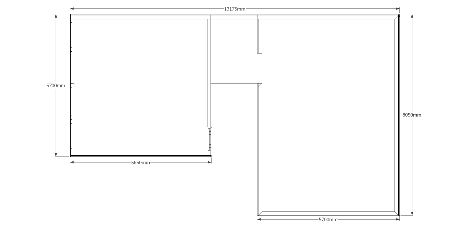
This oak framed complex consists of a two bay garage attached via a link building to a three bay home leisure building. The home leisure building has trimming for three velux windows and there are full length opening windows to the right side of the building.
Dimensions
| G/F Area (sq m) | 81.2 |
| Total Area (sq m) | 81.2 |
| Length (m) | 13.175 |
| Depth (m) | 8.05 |
| Ridge Height (m) | 4.8 |
| Roof Pitch (deg) | 40 |
| Number of Bays | 6 |
| Location | Surrey |




