Back to Four Bays and Upwards
Four Bays and Upwards - WS00680
Also in: Oak Barns
Also in: Stables and Barns
This is a building we have previously constructed which you may want to use as a starting point for your design. All our buildings are designed and manufactured to your individual specifications.
Details
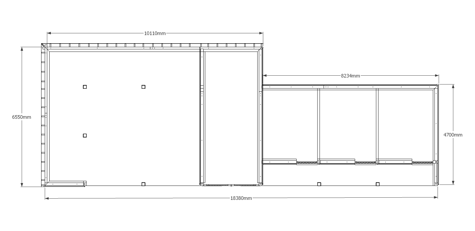
This oak framed garage and stable building has two open garage bays and one enclosed, as well as three stable bays with stable doors and a mullion window to the front.
Dimensions
| G/F Area (sq m) | 104.67 |
| Total Area (sq m) | 104.67 |
| Length (m) | 18.38 |
| Depth (m) | 6.5 |
| Ridge Height (m) | 4.4 |
| Roof Pitch (deg) | 40 |
| Number of Bays | 6 |
| Location | Yorkshire |




